For Sale By Auction | 11:00, 13 September 2023 | Lot 26

11 Globe Street, Methwold, Thetford, Norfolk IP26 4PQ

Sold £150,000

  • Semi-Detached House
  • 5 Bedrooms
  • Tenure: Freehold

Call the team on 01603 505 100 for more information

Auction Date

Wed 13/09/2023

Auction Time

11:00

Auction Venue

Livestream Auction

A charming period house occupies a delightful position in the centre of the village overlooking an open green

CASH BUYERS ONLY - The property has been in the same ownership since the mid-1970s and over the years has been the subject of a renovation and improvement programme including the construction of a two story rear extension which has not been completed and is being sold in its current condition.

Tenure

Freehold

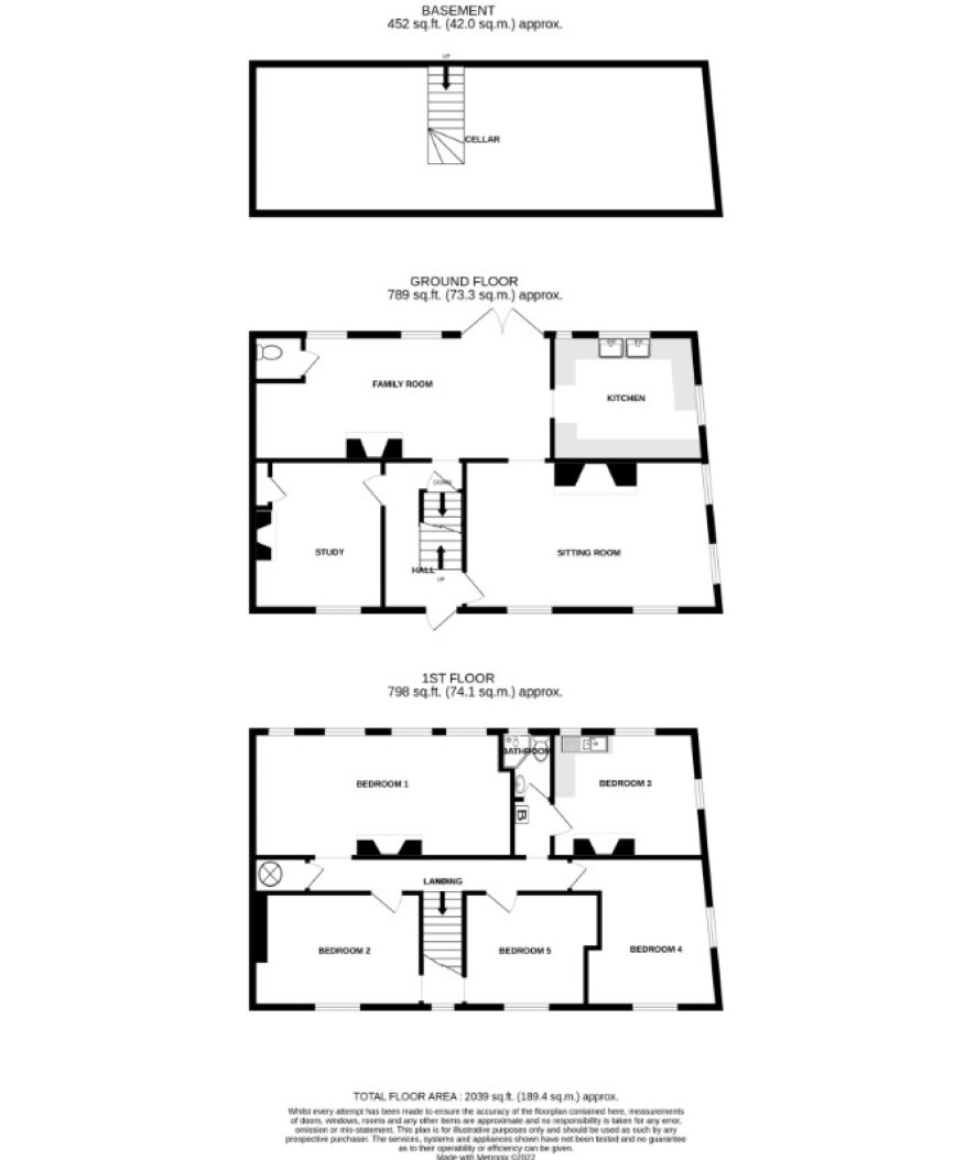
Ground Floor

Entrance hall, sitting room, study, family room, kitchen

First Floor

Five bedrooms and shower room

Outside

Front garden and small rear garden.

Council Tax Band

C

Energy Efficiency Rating (EPC)

Current Rating E

Services

Interested parties are requested to make their own enquiries to the relevant authorities as to the availability of services.

Local Authority

Kings Lynn and West Norfolk Borough Council

Solicitors

Hawkins Ryan, Ref: Laura Backham, Tel: 01553 691661

Offered in association with

Chilterns

Important Notice to Prospective Buyers:

We draw your attention to the Special Conditions of Sale within the Legal Pack, referring to other charges in addition to the purchase price which may become payable. Such costs may include Search Fees, reimbursement of Sellers costs and Legal Fees, and Transfer Fees amongst others.

Additional Fees

Buyer's Premium - £600 inc VAT payable on exchange of contracts.

Administration Charge - 0.3% inc VAT of the purchase price, subject to a minimum of £1200 inc VAT, payable on exchange of contracts.

Disbursements - Please see the legal pack for any disbursements listed that may become payable by the purchaser on completion.

View Larger Map

Disclaimer: The map preview provided above is for general guidance only and may not accurately reflect the exact location or surrounding buildings. Prospective buyers and interested parties are strongly advised to independently verify the precise location and surroundings before bidding.