Sold Prior | Lot 6

6 Hale Road, Necton, Swaffham, Norfolk PE37 8EY

Sold Prior

  • Detached Bungalow
  • 3 Bedrooms
  • Tenure: Freehold

Call the team on 01603 505 100 for more information

Auction Date

Wed 13/09/2023

Auction Time

11:00

Auction Venue

Livestream Auction

Spacious three bedroom detached bungalow in need of improvement

This detached character bungalow was let until recently and is now to be sold with vacant possession. It is double glazed, has gas fired central heating and benefits from a modern kitchen and traditional features such as wooden floors and fire places. Updating and improvement is required to realise its full potential. The good size 0.1 acre plot has off-road parking at the front and side. The property is situated near the village centre close to a range of services and amenities.

Tenure

Freehold

Description

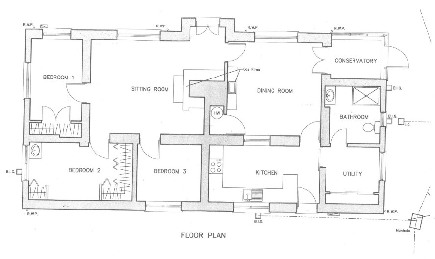
Conservatory, dining room, kitchen, bathroom, utility, sitting room, three bedrooms

Outside

Shingle driveway providing off road parking, front and rear garden

Viewing

Viewings are being held by appointment only. The next are on Wednesday 30 August. Please contact the Norwich office to book a slot.

Energy Efficiency Rating (EPC)

Current Rating D

Services

Interested parties are requested to make their own enquiries to the relevant authorities as to the availability of services.

Local Authority

Breckland Council

Solicitors

Ward Gethin Archer (Watton), Ref: Sue Bloomfield, Tel: 01953 880803

Important Notice to Prospective Buyers:

We draw your attention to the Special Conditions of Sale within the Legal Pack, referring to other charges in addition to the purchase price which may become payable. Such costs may include Search Fees, reimbursement of Sellers costs and Legal Fees, and Transfer Fees amongst others.

Additional Fees

Buyer's Premium - £480 inc VAT payable on exchange of contracts.

Administration Charge - 0.3% inc VAT of the purchase price, subject to a minimum of £1200 inc VAT, payable on exchange of contracts.

Disbursements - Please see the legal pack for any disbursements listed that may become payable by the purchaser on completion.

View Larger Map

Disclaimer: The map preview provided above is for general guidance only and may not accurately reflect the exact location or surrounding buildings. Prospective buyers and interested parties are strongly advised to independently verify the precise location and surroundings before bidding.