For Sale By Auction | 11:00, 13 September 2023 | Lot 33

9 & 9a Queen Street, Colchester, Essex CO1 2PG

Sold £160,000

  • Mixed Use
  • 1 Bedroom
  • Tenure: Freehold

Call the team on 01473 558 888 for more information

Auction Date

Wed 13/09/2023

Auction Time

11:00

Auction Venue

Livestream Auction

A freehold mixed use investment on the fringe of the city centre

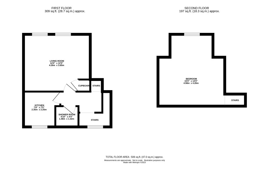
Situated in a prominent city edge location with good footfall is this freehold mixed use premises comprising a tenanted cafe and a vacant 1st/2nd floor maisonette. The cafe is an established business bringing in a monthly income of £541.66 pcm (£6,500 pa) whilst the fully modernised maisonette is ready for immediate owner or tenant occupation. An attractive investment opportunity which if fully tenanted would provide a strong annual yield.

Tenure

Freehold

Council Tax Band

A

Services

Interested parties are requested to make their own enquiries to the relevant authorities as to the availability of services.

Local Authority

Colchester Borough Council

Solicitors

Shoredons & Co Legal, Ref: Emma Barnard, Tel: 07468 878012

Important Notice to Prospective Buyers:

We draw your attention to the Special Conditions of Sale within the Legal Pack, referring to other charges in addition to the purchase price which may become payable. Such costs may include Search Fees, reimbursement of Sellers costs and Legal Fees, and Transfer Fees amongst others.

Additional Fees

Buyer's Premium - £1020 inc VAT payable on exchange of contracts.

Administration Charge - 0.3% inc VAT of the purchase price, subject to a minimum of £1200 inc VAT, payable on exchange of contracts.

Disbursements - Please see the legal pack for any disbursements listed that may become payable by the purchaser on completion.

View Larger Map

Disclaimer: The map preview provided above is for general guidance only and may not accurately reflect the exact location or surrounding buildings. Prospective buyers and interested parties are strongly advised to independently verify the precise location and surroundings before bidding.