Postponed | Lot 31

Garlands, 67 London Road, Clacton-On-Sea, Essex CO15 3SR

Postponed

  • Detached House
  • 5 Bedrooms
  • Tenure: Freehold

Call the team on 01473 558 888 for more information

Auction Date

Wed 13/09/2023

Auction Time

11:00

Auction Venue

Livestream Auction

An attractive 1930s built detached house for refurbishment and with scope to extend.

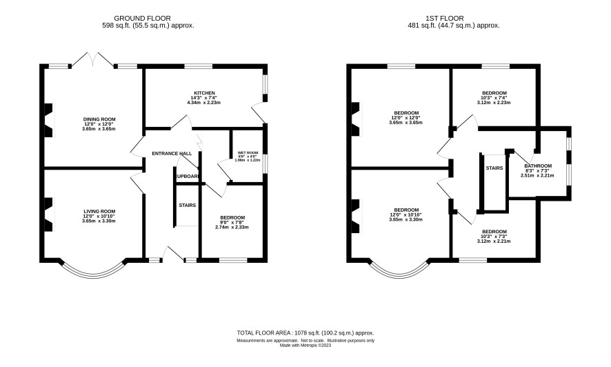
This well proportioned detached house offers a good deal of original character and occupies a generous sized plot giving scope to extend (STPP). The two reception room, five bedroom accommodation includes a ground floor bedroom and wet room converted from the garage which is ideal for a dependant relative giving the property great versatility. The property has off road parking and already benefits from gas central heating and double glazing but would benefit from internal refurbishment to provide a comfortable family home.

Tenure

Freehold

Viewing

Open Viewings have been scheduled for Wednesday 30th August and Thursday 7th September. BOOKING AN APPOINTMENT IS ESSENTIAL. Please contact our Ipswich office to make arrangements.

Council Tax Band

E

Energy Efficiency Rating (EPC)

Current Rating E

Services

Interested parties are requested to make their own enquiries to the relevant authorities as to the availability of services.

Local Authority

Tendring District Council

Solicitors

Fairhurst Menuhin & Co, Ref: Sarah-Jane Money, Tel: 01787 827583

Important Notice to Prospective Buyers:

We draw your attention to the Special Conditions of Sale within the Legal Pack, referring to other charges in addition to the purchase price which may become payable. Such costs may include Search Fees, reimbursement of Sellers costs and Legal Fees, and Transfer Fees amongst others.

Additional Fees

Buyer's Premium - £1140 inc VAT payable on exchange of contracts.

Administration Charge - 0.3% inc VAT of the purchase price, subject to a minimum of £1200 inc VAT, payable on exchange of contracts.

Disbursements - Please see the legal pack for any disbursements listed that may become payable by the purchaser on completion.

View Larger Map

Disclaimer: The map preview provided above is for general guidance only and may not accurately reflect the exact location or surrounding buildings. Prospective buyers and interested parties are strongly advised to independently verify the precise location and surroundings before bidding.