For Sale By Auction | 11:00, 13 December 2023 | Lot 10

75 Gwydir Street, Cambridge, Cambridgeshire CB1 2LG

Sold £392,000

  • Terraced House
  • 3 Bedrooms
  • Tenure: Freehold

Call the team on 01733 889833 for more information

Auction Date

Wed 13/12/2023

Auction Time

11:00

Auction Venue

Livestream Auction

A three bedroom terraced house in need of modernisation throughout in the popular golden triangle of Cambridge off Mill Road.

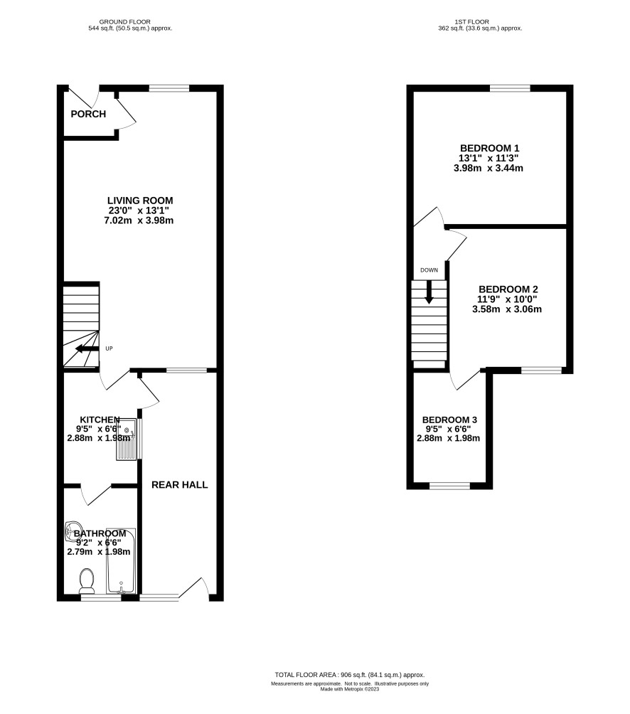
This three bedroom terraced house is located in Gwydir Street off Mill Road and is in need of modernisation and improvement. Ideal for a builder/developer. The property offers a living room, kitchen, ground floor bathroom and rear hall with three bedrooms on the first floor. Access to bedroom three is via bedroom two. There is a garden at the rear. Gwydir street is in the Golden Triangle off Mill Road. The University City of Cambridge offers a wealth of facilities including a main line rail link.

Tenure

Freehold

Accommodation

Entrance Porch, living room, kitchen, bathroom and rear hall.

First Floor

Three bedrooms. Bedroom three has access via bedroom two.

Outside

Garden to rear

Viewings

Open viewings are arranged and the next are on Friday 01 December and Tuesday 05 December. To book an appointment please call the Peterborough office.

Energy Efficiency Rating (EPC)

Current Rating G

Services

Interested parties are requested to make their own enquiries to the relevant authorities as to the availability of services.

Local Authority

Cambridge City Council

Solicitors

22 Law, Ref: Claire Stanton, Tel: 0191 432 4408

Important Notice to Prospective Buyers:

We draw your attention to the Special Conditions of Sale within the Legal Pack, referring to other charges in addition to the purchase price which may become payable. Such costs may include Search Fees, reimbursement of Sellers costs and Legal Fees, and Transfer Fees amongst others.

Additional Fees

Buyer's Premium - £1200 inc VAT payable on exchange of contracts.

Administration Charge - 0.3% inc VAT of the purchase price, subject to a minimum of £1200 inc VAT, payable on exchange of contracts.

Disbursements - Please see the legal pack for any disbursements listed that may become payable by the purchaser on completion.

View Larger Map

Disclaimer: The map preview provided above is for general guidance only and may not accurately reflect the exact location or surrounding buildings. Prospective buyers and interested parties are strongly advised to independently verify the precise location and surroundings before bidding.