Postponed | Lot 103

2 Marine Parade, Gorleston, Great Yarmouth, Norfolk NR31 6DP

Postponed

  • Semi-Detached House
  • 5 Bedrooms
  • Tenure: Freehold

Call the team on 01603 505 100 for more information

Auction Date

Wed 13/12/2023

Auction Time

11:00

Auction Venue

Livestream Auction

Impressive three storey semi-detached house in prestige location overlooking the Promenade and beach

2 Marine Parade is a highly sought-after address overlooking the Promenade and award winning sandy beach. The house has been extensively and tastefully updated but the finishing touches are still required to complete the full modernisation to personal tastes. The spacious accommodation is arranged over three floors with three balconies and windows overlooking the beach to the east and capturing the sunset to the west. The current layout allows for three bedroom suites but the house could be rearranged to accommodate additional bedroom space if required. Large grounds to the rear offer extensive parking which could accommodate up to 5 cars or motorhome/boat trailer, and a very large garage workshop which could provide additional covered parking for 4 vehicles. Now lapsed, the garage had Planning Permission for conversion into an annex. Internal inspection is highly recommended.

Tenure

Freehold

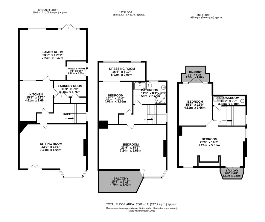
Ground Floor

Sitting room, hall, family room, kitchen, utility room, WC (potential shower room)

First Floor

Landing, master bedroom with balcony overlooking beach, bedroom 2 with potential en suite, family bathroom.

Second Floor

Landing, suite of rooms currently used as a sitting room, hobby room and rear balcony. Cloakroom.

Outside

Sheltered front garden side path leading to large fully fenced rear garden with extensive parking area, two small grassed areas and large garage workshop with inspection pit. Side driveway onto Clarence Road.

Council Tax Band

C

Viewing

Open viewing has been scheduled for Monday 11th December2023. APPOINTMENT ESSENTIAL - please call our Norwich office

Energy Efficiency Rating (EPC)

Current Rating D

Services

Interested parties are requested to make their own enquiries to the relevant authorities as to the availability of services.

Local Authority

Great Yarmouth Borough Council

Solicitors

England and Co (Gorleston), Ref: Shannon Beare, Tel: 01493 604990

Important Notice to Prospective Buyers:

We draw your attention to the Special Conditions of Sale within the Legal Pack, referring to other charges in addition to the purchase price which may become payable. Such costs may include Search Fees, reimbursement of Sellers costs and Legal Fees, and Transfer Fees amongst others.

Additional Fees

Buyer's Premium - £900 inc VAT payable on exchange of contracts.

Administration Charge - 0.3% inc VAT of the purchase price, subject to a minimum of £1200 inc VAT, payable on exchange of contracts.

Disbursements - Please see the legal pack for any disbursements listed that may become payable by the purchaser on completion.

View Larger Map

Disclaimer: The map preview provided above is for general guidance only and may not accurately reflect the exact location or surrounding buildings. Prospective buyers and interested parties are strongly advised to independently verify the precise location and surroundings before bidding.