Withdrawn | Lot 41

39 Upper Orwell Street, Ipswich, Suffolk IP4 1HP

Withdrawn

  • Mixed Use
  • 3 Bedrooms
  • Tenure: Freehold

Call the team on 01473 558 888 for more information

Auction Date

Wed 07/02/2024

Auction Time

11:00

Auction Venue

Livestream Auction

A Freehold mixed use investment with a strong annual yield

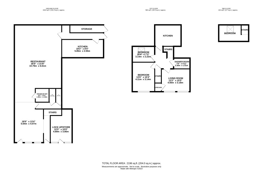
Situated on the fringe of the town centre is this mixed use investment generating a rental income of £21,600 per annum. The property extends to around 2,200 sq ft (204 sq m) and incorporates a popular restaurant, a small lock up store and a 3 bedroom flat over 2 floors. It is currently let as a whole on a 10 year lease from September 2022 and subject to 3 yearly rent reviews. The income relates to a near 10% annual return based on the low Guide Price and therefore represents a first class investment opportunity.

Tenure

Freehold

Ground Floor

Restaurant, kitchen, lock up/store and WC

First Floor

Two bedrooms, kitchen, shower room and living room

Second Floor

One bedroom

Council Tax Band

A

Energy Efficiency Rating (EPC)

Current Rating C

Services

Interested parties are requested to make their own enquiries to the relevant authorities as to the availability of services.

Local Authority

Ipswich Borough Council

Solicitors

Ross Coates Solicitors (Kesgrave), Ref: Lucy Guerreiro, Tel: 01473 621800

Important Notice to Prospective Buyers:

We draw your attention to the Special Conditions of Sale within the Legal Pack, referring to other charges in addition to the purchase price which may become payable. Such costs may include Search Fees, reimbursement of Sellers costs and Legal Fees, and Transfer Fees amongst others.

Additional Fees

Buyer's Premium - £1140 inc VAT payable on exchange of contracts.

Administration Charge - 0.3% inc VAT of the purchase price, subject to a minimum of £1200 inc VAT, payable on exchange of contracts.

Disbursements - Please see the legal pack for any disbursements listed that may become payable by the purchaser on completion.

View Larger Map

Disclaimer: The map preview provided above is for general guidance only and may not accurately reflect the exact location or surrounding buildings. Prospective buyers and interested parties are strongly advised to independently verify the precise location and surroundings before bidding.