Postponed | Lot 12

87 Spixworth Road, Old Catton, Norwich, Norfolk NR6 7NH

Postponed

  • Terraced House
  • 4 Bedrooms
  • Tenure: Freehold

Call the team on 01603 505 100 for more information

Auction Date

Wed 07/02/2024

Auction Time

11:00

Auction Venue

Livestream Auction

This four bedroom terraced home, situated within a conservation area and now requiring a programme of modernisation

Situated within a conservation area this generous hall entranced terraced house has been in the same family for over 50 years and is now in need of a refurbishment programme to realise its full potential. The accommodation includes two reception rooms, kitchen, ground floor bathroom and store. On the first floor there are four bedrooms. Plenty of period features to include: high ceilings, sash windows and internal doors. On street parking to the front and a large enclosed rear garden with outbuildings.

Tenure

Freehold

Location

To the rear of the property is Catton Park, a beautiful 70 acre country park and is open for all to enjoy at any time. It has special significance as it was the first commission of Humphry Repton as a landscape gardener. with its open wild flower meadow and woodland with its many interesting trees and wood sculptures. Old Catton is well placed for access to the Norfolk Broads and picturesque countryside, yet is within two miles of Norwich City Centre.

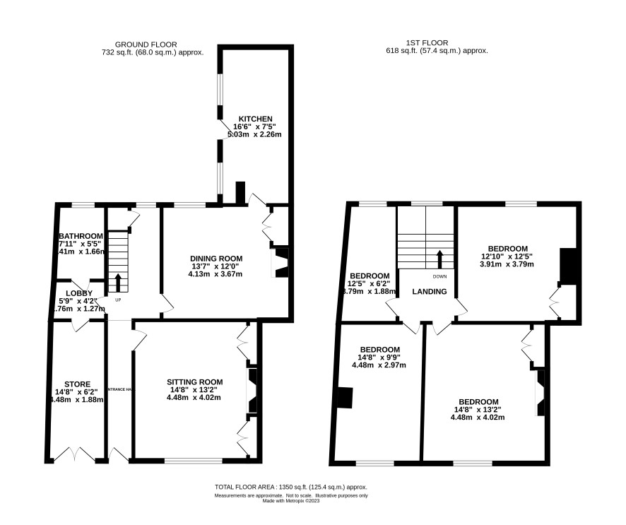
Ground Floor

Entrance hall, sitting room, dining room, kitchen, bathroom, lobby and store

First Floor

Landing, four bedrooms

Outside

On street parking to the front and a large enclosed rear garden with outbuildings.

Council Tax

C

Viewings

Open viewings have been arranged - the next is Monday 5th February. To book an appointment please call the Norwich office.

Energy Efficiency Rating (EPC)

Current Rating G

Services

Interested parties are requested to make their own enquiries to the relevant authorities as to the availability of services.

Local Authority

Broadland District Council

Solicitors

Goodwin Cowley (Norwich), Ref: Aswarthy Sivadas, Tel: 0330 055 7598

Important Notice to Prospective Buyers:

We draw your attention to the Special Conditions of Sale within the Legal Pack, referring to other charges in addition to the purchase price which may become payable. Such costs may include Search Fees, reimbursement of Sellers costs and Legal Fees, and Transfer Fees amongst others.

Additional Fees

Buyer's Premium - £600 inc VAT payable on exchange of contracts.

Administration Charge - 0.3% inc VAT of the purchase price, subject to a minimum of £1200 inc VAT, payable on exchange of contracts.

Disbursements - Please see the legal pack for any disbursements listed that may become payable by the purchaser on completion.

View Larger Map

Disclaimer: The map preview provided above is for general guidance only and may not accurately reflect the exact location or surrounding buildings. Prospective buyers and interested parties are strongly advised to independently verify the precise location and surroundings before bidding.