Postponed | Lot 91

The Clyffe Hotel, 3 Kirkley Cliff, Lowestoft, Suffolk NR33 0BY

Postponed

  • Hotel
  • Tenure: Freehold

Call the team on 01603 505 100 for more information

Auction Date

Wed 07/02/2024

Auction Time

11:00

Auction Venue

Livestream Auction

Stunning Grade II listed, 19th century boutique hotel with breath-taking sea views, 16 spacious double rooms with en-suites and a large private function room.

This impressive hotel was built in 1876 and was originally used as a family home, before being turned into apartments just after the turn of the 20th century. Since then, the property has been a YMCA holiday centre, a home for the elderly and then back to self-contained flats. The current owners lovingly restored the building in 2014 and the hotel now offers 16 boutique rooms with luxury bathrooms all finished with high end furnishings. Each room offer a unique feature from sea views to a disabled room and all floors can be accessed via a lift or for the more energetic a beautiful staircase with mahogany hand rail sweeps the centre of the budling. The hotel offers a restaurant seating 80 covers (currently serving breakfast only) fully licenced bar and function room, all of which could enhance the income for a potential investor. The hotel is currently managed by a couple who occupy the ground floor serviced accommodation and is overseen by the owners and part time staff members. There are many other features to be discussed upon viewing the property. All certificates for maintenance are current and can be viewed upon request. They are subject to 50% non-domestic debit and 50% discount for retail, hospitality and leisure. For guidance on this matter, we would encourage interested parties to consult with East Suffolk Council. Non domestic rateable value 2023/2024 is 1996.00pa

Tenure

Freehold

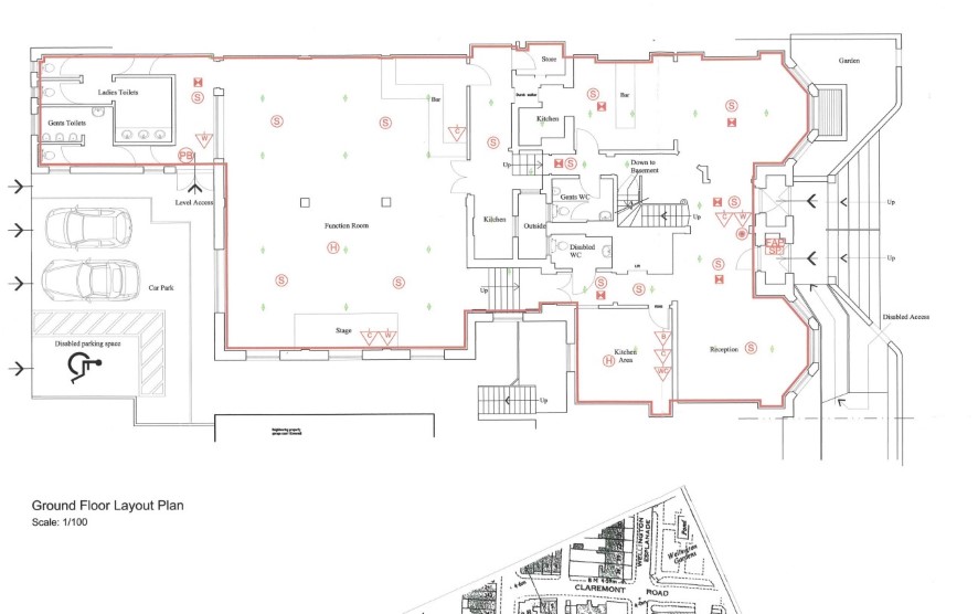
Ground floor

Reception, bar and seating area, restaurant, toilets, kitchen, function room

First floor

Four Guest rooms all with ensuite facilities

Second floor

Four Guest rooms all with ensuite facilities

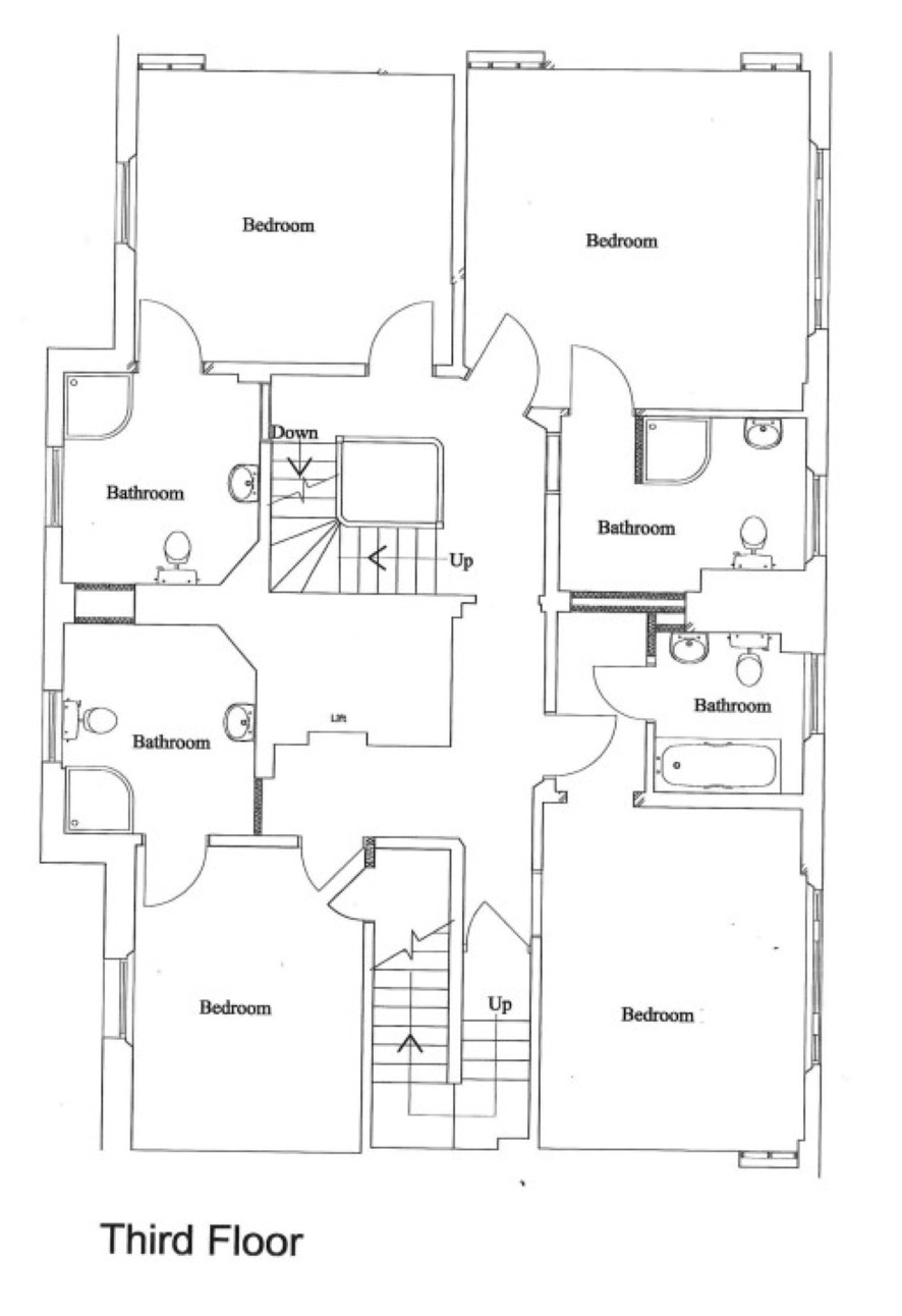
Third floor

Four Guest rooms all with ensuite facilities

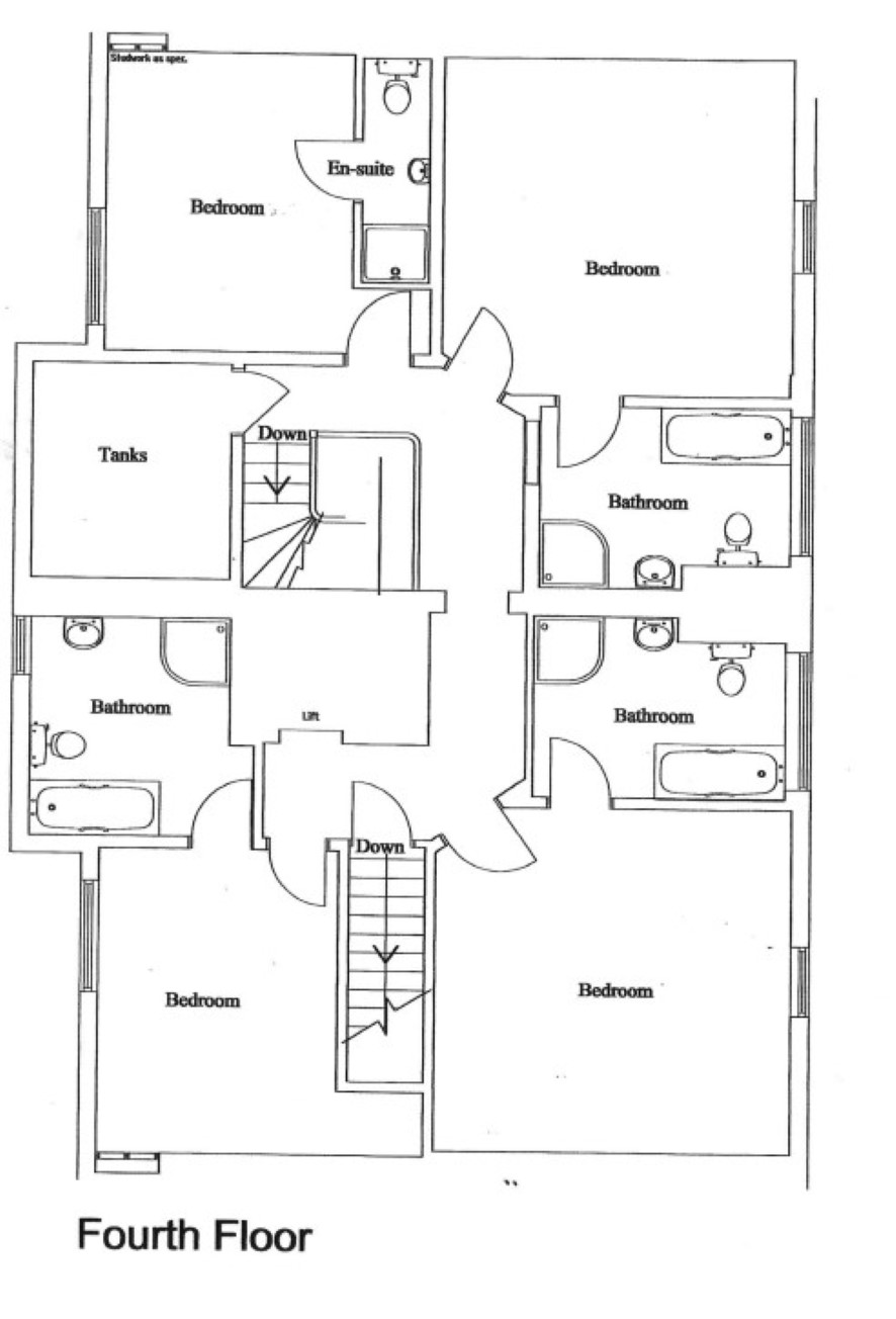
Fourth floor

Four Guest rooms all with ensuite facilities

Basement

Two bedroom apartment with ensuite bathroom, kitchen, sitting room, shower room. Lift maintenance rooms, sprinkler water tanks, drinks cellar, chemical store, electrical incoming mains room.

Note

Please note that VAT is applicable to this lot.

Viewings

Strictly by appointment only. The next viewings will take place on Thursday 15 February. Please contact the Norwich office to arrange an appointment.

Energy Efficiency Rating (EPC)

Current Rating C

Services

Interested parties are requested to make their own enquiries to the relevant authorities as to the availability of services.

Local Authority

East Suffolk Council

Solicitors

Mears Hobbs and Durrant (Lowestoft), Ref: Richard Temple, Tel: 07908 987100

Offered in association with

Paul Hubbard Estate Agents

Important Notice to Prospective Buyers:

We draw your attention to the Special Conditions of Sale within the Legal Pack, referring to other charges in addition to the purchase price which may become payable. Such costs may include Search Fees, reimbursement of Sellers costs and Legal Fees, and Transfer Fees amongst others.

Additional Fees

Buyer's Premium - £960 inc VAT payable on exchange of contracts.

Administration Charge - 0.3% inc VAT of the purchase price, subject to a minimum of £1200 inc VAT, payable on exchange of contracts.

Disbursements - Please see the legal pack for any disbursements listed that may become payable by the purchaser on completion.

View Larger Map

Disclaimer: The map preview provided above is for general guidance only and may not accurately reflect the exact location or surrounding buildings. Prospective buyers and interested parties are strongly advised to independently verify the precise location and surroundings before bidding.