Postponed | Lot 86

58 Stanford Street, Lowestoft, Suffolk NR32 2DD

Postponed

  • End of Terrace House
  • 3 Bedrooms
  • Tenure: Freehold

Call the team on 01603 505 100 for more information

Auction Date

Wed 07/02/2024

Auction Time

11:00

Auction Venue

Livestream Auction

Vacant bay fronted terrace house requiring some updating

This three bedroom end terrace house was previously tenanted but now vacant and in need of some updating and redecoration. The property has gas central heating, double glazing, and a well proportioned rear garden. The town centre shops and amenities are available near by and it is in walking distance of the railway station.

Tenure

Freehold

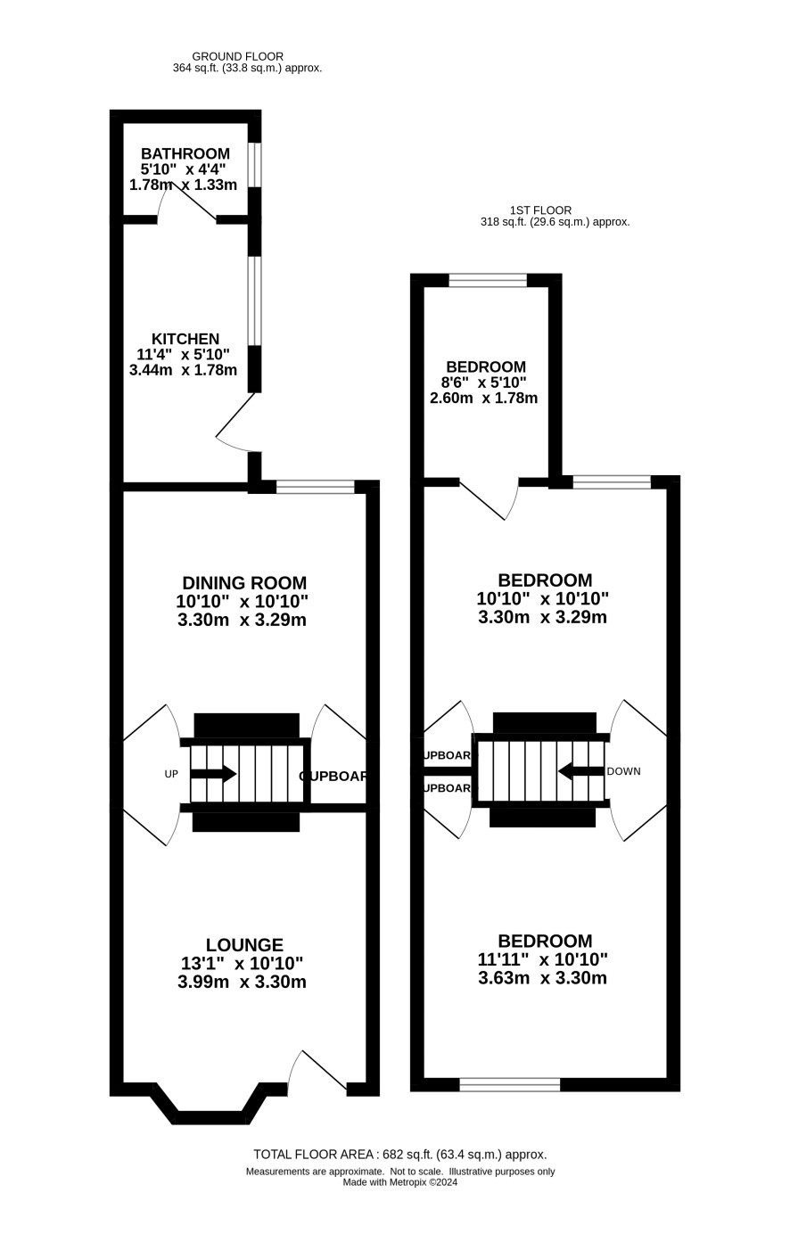
Ground Floor

Bay fronted lounge, dining room, kitchen, bathroom

First Floor

Landing, three bedrooms

Outside

Small front garden fully enclosed, rear garden with pedestrian access

Council Tax Band

A

Viewings

Open viewings are arranged and the next are on Thursday 15 February. To book an appointment please call the Norwich office.

Energy Efficiency Rating (EPC)

Current Rating D

Services

Interested parties are requested to make their own enquiries to the relevant authorities as to the availability of services.

Local Authority

East Suffolk Council

Solicitors

Leathes Prior (The Close), Ref: Joanna Allen, Tel: 01603 281009

Important Notice to Prospective Buyers:

We draw your attention to the Special Conditions of Sale within the Legal Pack, referring to other charges in addition to the purchase price which may become payable. Such costs may include Search Fees, reimbursement of Sellers costs and Legal Fees, and Transfer Fees amongst others.

Additional Fees

Buyer's Premium - £720 inc VAT payable on exchange of contracts.

Administration Charge - 0.3% inc VAT of the purchase price, subject to a minimum of £1200 inc VAT, payable on exchange of contracts.

Disbursements - Please see the legal pack for any disbursements listed that may become payable by the purchaser on completion.

View Larger Map

Disclaimer: The map preview provided above is for general guidance only and may not accurately reflect the exact location or surrounding buildings. Prospective buyers and interested parties are strongly advised to independently verify the precise location and surroundings before bidding.