For Sale By Auction | 11:00, 07 February 2024 | Lot 37

26 Suffolk Road, Ipswich, Suffolk IP4 2HH

Sold £127,000

  • Terraced House
  • 2 Bedrooms
  • Tenure: Freehold

Call the team on 01473 558 888 for more information

Auction Date

Wed 07/02/2024

Auction Time

11:00

Auction Venue

Livestream Auction

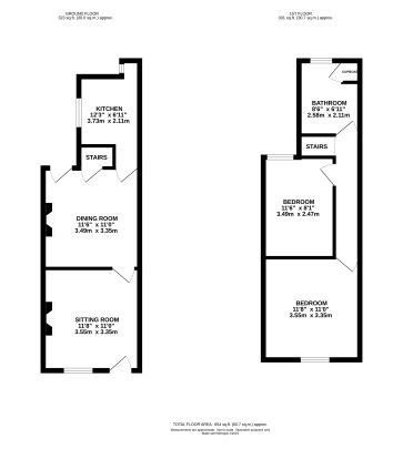
A mid-terraced house close to Christchurch Park

Situated within walking distance of the town centre is this Victorian terraced house which is in need of improvement. The property offers two reception room, two bedroom accommodation with a first floor bathroom and benefits from gas central heating. Strong rental demand in the area make this an excellent investment opportunity.

Tenure

Freehold

Viewing

Open Viewing has been scheduled for Mon 15th, Fri 19th, Wed 24th and Mon 29th January. BOOKING AN APPOINTMENT IS ESSENTIAL. Please contact our Ipswich office to make arrangements.

Council Tax Band

A

Energy Efficiency Rating (EPC)

Current Rating D

Services

Interested parties are requested to make their own enquiries to the relevant authorities as to the availability of services.

Local Authority

Ipswich Borough Council

Solicitors

Sparlings, Ref: Paul Connolly, Tel: 01206 733 733

Important Notice to Prospective Buyers:

We draw your attention to the Special Conditions of Sale within the Legal Pack, referring to other charges in addition to the purchase price which may become payable. Such costs may include Search Fees, reimbursement of Sellers costs and Legal Fees, and Transfer Fees amongst others.

Additional Fees

Buyer's Premium - £900 inc VAT payable on exchange of contracts.

Administration Charge - 0.3% inc VAT of the purchase price, subject to a minimum of £1200 inc VAT, payable on exchange of contracts.

Disbursements - Please see the legal pack for any disbursements listed that may become payable by the purchaser on completion.

View Larger Map

Disclaimer: The map preview provided above is for general guidance only and may not accurately reflect the exact location or surrounding buildings. Prospective buyers and interested parties are strongly advised to independently verify the precise location and surroundings before bidding.