For Sale By Auction | 11:00, 07 February 2024 | Lot 81A

5-6 Middle Market Road, Great Yarmouth, Norfolk NR30 2DT

*Guide | £150,000 (plus fees)

  • Commercial Property
  • Tenure: Freehold

Call the team on 01603 505 100 for more information

Auction Date

Wed 07/02/2024

Auction Time

11:00

Auction Venue

Livestream Auction

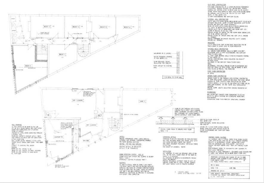
Substantial prominent town centre detached property in need of refurbishment offering redevelopment potential

This prominent building is located in the town centre opposite the Market Gates shopping centre and British Heart Foundation. The ground floor commercial space including the single storey extension extends to around 130 sq/m and has been a dry cleaners for many years. The upper two floors have been used as bedsits in the past. The building offers a range of potential uses subject to the necessary consents being obtained, and will be sold with vacant possession. According to the valuation office website the single storey retail area no 5 has an area of 47.4 sq/m and a rateable value of £3,150 and no 6 has an area of 82.5 sq/m and a rateable value of £5,400 with effect from 1st April 2023. Qualifying businesses therefore will not pay business rates.

Tenure

Freehold

5

Lower ground floor: basement Ground floor: large retail area, store room, staff room

6

Ground floor: shop, three rooms, store area First floor: landing, 6 rooms, wc, two shower rooms Second floor: landing, four rooms

Plans

Plans have been drawn up to extend the property, stpp.

Energy Efficiency Rating (EPC)

Current Rating C

Services

Interested parties are requested to make their own enquiries to the relevant authorities as to the availability of services.

Local Authority

Great Yarmouth Borough Council

Solicitors

HKB Wiltshires (Great Yarmouth), Ref: Sarah Harris, Tel: 01493 855676

Important Notice to Prospective Buyers:

We draw your attention to the Special Conditions of Sale within the Legal Pack, referring to other charges in addition to the purchase price which may become payable. Such costs may include Search Fees, reimbursement of Sellers costs and Legal Fees, and Transfer Fees amongst others.

Additional Fees

Administration Charge - 0.3% inc VAT of the purchase price, subject to a minimum of £1200 inc VAT, payable on exchange of contracts.

Disbursements - Please see the legal pack for any disbursements listed that may become payable by the purchaser on completion.

View Larger Map

Disclaimer: The map preview provided above is for general guidance only and may not accurately reflect the exact location or surrounding buildings. Prospective buyers and interested parties are strongly advised to independently verify the precise location and surroundings before bidding.