For Sale By Auction | 11:00, 07 February 2024 | Lot 7

19 Prince of Wales Road, Norwich, Norfolk NR1 1BD

Sold £182,000

  • Commercial Property
  • Tenure: Flying Freehold

Call the team on 01603 505 100 for more information

Auction Date

Wed 07/02/2024

Auction Time

11:00

Auction Venue

Livestream Auction

Mixed use property comprising vacant restaurant with two bedroom flat above in need of refurbishment

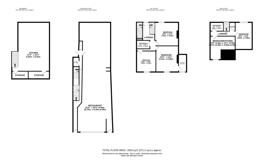
The deceptively spacious mid-terraced mixed use property (161 sq/m) has accommodation over four floors and extends to around 161 sq/m (1,733 sq/ft). The restaurant previously traded as Prince of India, and along with the large two bedroom flat above is sold with vacant possession. The flat can be self contained with access via a separate door to the left of the restaurant. The property lies within the Norwich City Centre conservation area, however is not listed. It is between the city centre and train station in the main night life area. On instruction of a Trustee

Tenure

Flying Freehold

Ratable Value

According to the Valuation Office website, the restaurant and premises has an area of 161.3 sq/m square metres and a rateable value of £18,250 with effect from the 1st April 2023.

Basement

Kitchen, store room

Ground floor

Restaurant and bar area, male and female wc

First floor

Kitchen, shower and wc, two bedrooms, sitting room

Second floor

Two rooms, wc

Viewing

Open viewings have been scheduled for Monday 5th February - APPOINTMENT ESSENTIAL - please call our Norwich office on 01603 505100 to be allocated a time slot.

Energy Efficiency Rating (EPC)

Current Rating D

Services

Interested parties are requested to make their own enquiries to the relevant authorities as to the availability of services.

Local Authority

Norwich City Council

Solicitors

Cozens-Hardy LLP, Ref: Dan Evans, Tel: 01603 724676

Offered in association with

Arnolds Keys

Important Notice to Prospective Buyers:

We draw your attention to the Special Conditions of Sale within the Legal Pack, referring to other charges in addition to the purchase price which may become payable. Such costs may include Search Fees, reimbursement of Sellers costs and Legal Fees, and Transfer Fees amongst others.

Additional Fees

Buyer's Premium - £900 inc VAT payable on exchange of contracts.

Administration Charge - 0.3% inc VAT of the purchase price, subject to a minimum of £1200 inc VAT, payable on exchange of contracts.

Disbursements - Please see the legal pack for any disbursements listed that may become payable by the purchaser on completion.

View Larger Map

Disclaimer: The map preview provided above is for general guidance only and may not accurately reflect the exact location or surrounding buildings. Prospective buyers and interested parties are strongly advised to independently verify the precise location and surroundings before bidding.