For Sale By Auction | 11:00, 20 March 2024 | Lot 102

29 High Street, Gorleston, Great Yarmouth, Norfolk NR31 6RT

Sold £100,000

  • Semi-Detached Bungalow
  • 2 Bedrooms
  • Tenure: Freehold

Call the team on 01603 505 100 for more information

Auction Date

Wed 20/03/2024

Auction Time

11:00

Auction Venue

Livestream Auction

Two bedroom semi-detached bungalow with fine views over the River Yare requiring complete refurbishment

This property has been owned by the same person for over 30 years and is now to be sold with vacant possession. It is situated in an elevated position with a superb outlook over the River Yare to the rear. The property has accommodation on two floors and requires a comprehensive programme of improvement to realise its full potential. The property is located around a mile north of the town centre close to a range of services and amenities. On instruction of executors

Tenure

Freehold

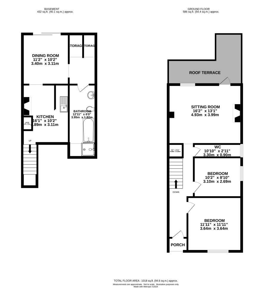
Lower ground floor

Kitchen, bathroom, dining room, store room

Ground floor

Porch, entrance hall, two bedrooms, sitting room, wc, roof terrace

Outside

Front and rear garden in need of attention.

Council Tax Band

C

Viewings

Viewings are by appointment only and the next is on Friday 15 March. Please call the Norwich office to arrange a booking.

Energy Efficiency Rating (EPC)

Current Rating E

Services

Interested parties are requested to make their own enquiries to the relevant authorities as to the availability of services.

Local Authority

Great Yarmouth Borough Council

Solicitors

Lucas and Wyllys (Great Yarmouth), Ref: Lauren Poll, Tel: 01493 855555

Offered in association with

Bycroft Residential

Important Notice to Prospective Buyers:

We draw your attention to the Special Conditions of Sale within the Legal Pack, referring to other charges in addition to the purchase price which may become payable. Such costs may include Search Fees, reimbursement of Sellers costs and Legal Fees, and Transfer Fees amongst others.

Additional Fees

Buyer's Premium - £900 inc VAT payable on exchange of contracts.

Administration Charge - 0.3% inc VAT of the purchase price, subject to a minimum of £1200 inc VAT, payable on exchange of contracts.

Disbursements - Please see the legal pack for any disbursements listed that may become payable by the purchaser on completion.

View Larger Map

Disclaimer: The map preview provided above is for general guidance only and may not accurately reflect the exact location or surrounding buildings. Prospective buyers and interested parties are strongly advised to independently verify the precise location and surroundings before bidding.