For Sale By Auction | 11:00, 20 March 2024 | Lot 31

62 Saddlebow Road, King's Lynn, Norfolk PE30 5BN

Sold £72,500

  • Semi-Detached House
  • 3 Bedrooms
  • Tenure: Freehold

Call the team on 01553 777 773 for more information

Auction Date

Wed 20/03/2024

Auction Time

11:00

Auction Venue

Livestream Auction

A three bedroom semi-detached house in need of full modernisation

This three bedroom semi-detached property is located in South Lynn and is in need of modernisation. The house briefly comprises lounge, kitchen/ breakfast room and WC to the ground floor. To the first floor there are three bedrooms, bathroom and separate WC Located in South Lynn, the property is within easy reach to the main town centre with its wide range of shops as well as bus station and mainline railway station with services to London King's Cross.

Tenure

Freehold

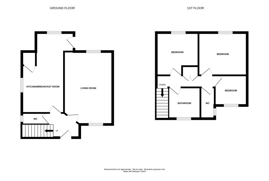
Ground Floor

Entrance hall, lounge, kitchen/ breakfast room, WC

First Floor

Three bedrooms, bathroom, separate WC

Outside

Rear garden

Council Tax Band

A

Note

Please refer to Section 7. Notes for Guidance within the Legal Pack.

Energy Efficiency Rating (EPC)

Current Rating F

Services

Interested parties are requested to make their own enquiries to the relevant authorities as to the availability of services.

Local Authority

Kings Lynn and West Norfolk Borough Council

Solicitors

Howes Percival (Norwich), Ref: Sally Rackham, Tel: 01603 284250

Important Notice to Prospective Buyers:

We draw your attention to the Special Conditions of Sale within the Legal Pack, referring to other charges in addition to the purchase price which may become payable. Such costs may include Search Fees, reimbursement of Sellers costs and Legal Fees, and Transfer Fees amongst others.

Additional Fees

Buyer's Premium - £1800 inc VAT payable on exchange of contracts.

Administration Charge - 0.3% inc VAT of the purchase price, subject to a minimum of £1200 inc VAT, payable on exchange of contracts.

Disbursements - Please see the legal pack for any disbursements listed that may become payable by the purchaser on completion.

View Larger Map

Disclaimer: The map preview provided above is for general guidance only and may not accurately reflect the exact location or surrounding buildings. Prospective buyers and interested parties are strongly advised to independently verify the precise location and surroundings before bidding.