For Sale By Auction | 11:00, 20 March 2024 | Lot 37

4 Littles Crescent, Ipswich, Suffolk IP2 8DP

Sold £130,000

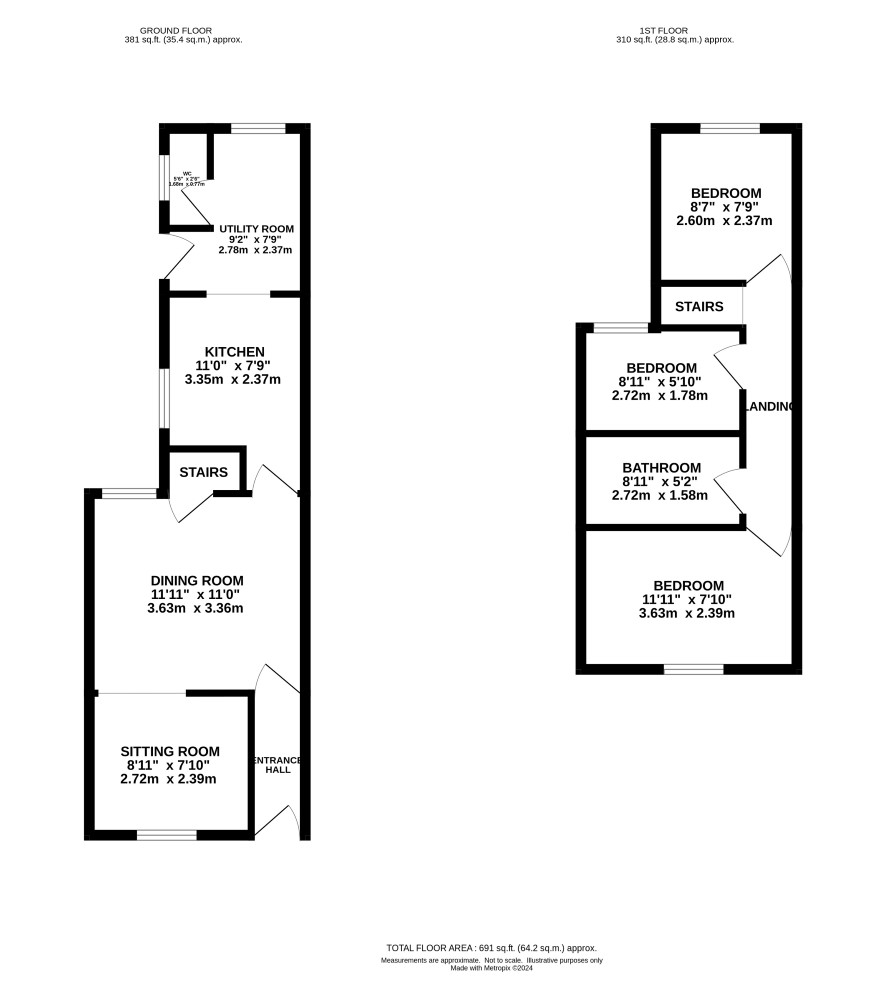
  • Terraced House
  • 3 Bedrooms
  • Tenure: Freehold

Call the team on 01473 558 888 for more information

Auction Date

Wed 20/03/2024

Auction Time

11:00

Auction Venue

Livestream Auction

A nicely presented terraced house with an established tenant

Situated to the south of Ipswich town centre is this Victorian terraced house which has been remodelled and is particularly well maintained throughout. The property offers two reception room, three bedroom accommodation with the benefit of gas central heating and double glazing and is currently let to a long standing tenant with a current rent of £750 per calendar month (£9,000 per annum). With a near 7% annual yield based on the low Guide Price we believe this to be an excellent investment opportunity.

Tenure

Freehold

Council Tax Band

A

Viewing

Open Viewings have been scheduled for Tues 12th and Fri 15th March both at 10.00am. BOOKING AN APPOINTMENT IS ESSENTIAL. Please contact our Ipswich office on 01473 558888 to book in if you wish to attend.

Energy Efficiency Rating (EPC)

Current Rating D

Services

Interested parties are requested to make their own enquiries to the relevant authorities as to the availability of services.

Local Authority

Ipswich Borough Council

Solicitors

Hayward Moon (Bury St Edmunds), Ref: Shona Arnold, Tel: 01284 727293

Offered in association with

Home To Rent Ltd

Important Notice to Prospective Buyers:

We draw your attention to the Special Conditions of Sale within the Legal Pack, referring to other charges in addition to the purchase price which may become payable. Such costs may include Search Fees, reimbursement of Sellers costs and Legal Fees, and Transfer Fees amongst others.

Additional Fees

Buyer's Premium - £900 inc VAT payable on exchange of contracts.

Administration Charge - 0.3% inc VAT of the purchase price, subject to a minimum of £1200 inc VAT, payable on exchange of contracts.

Disbursements - Please see the legal pack for any disbursements listed that may become payable by the purchaser on completion.

View Larger Map

Disclaimer: The map preview provided above is for general guidance only and may not accurately reflect the exact location or surrounding buildings. Prospective buyers and interested parties are strongly advised to independently verify the precise location and surroundings before bidding.