For Sale By Auction | 11:00, 20 March 2024 | Lot 4

15 Rackham Road, Norwich, Norfolk NR3 3JQ

Sold £110,000

  • Terraced House
  • 2 Bedrooms
  • Tenure: Freehold

Call the team on 01603 505 100 for more information

Auction Date

Wed 20/03/2024

Auction Time

11:00

Auction Venue

Livestream Auction

A two bedroom mid terrace house currently let to an assured tenant rent of £430pcm (£5,160pa)

This basically modernised two bedroom terrace house is occupied by a long standing tenant who is paying a rent of £430 pcm (£5,160 pa). This was last registered was on 26th June 2016. The original tenant has recently passed away and the protected tenancy has now been transferred to their son who is still in occupation on an assured tenancy. The property Is situated to the north of Norwich within walking distance of local shops and amenities, a regular bus service runs close to the property into the city centre.

Tenure

Freehold

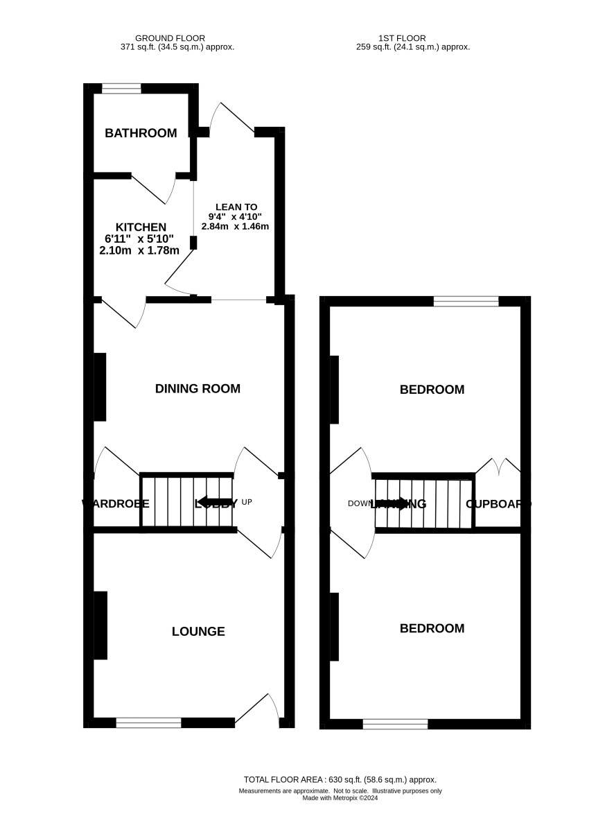
Ground Floor

Lounge, dining room, kitchen, bathroom

First Floor

Small landing, two bedrooms

Outside

Small front garden, fenced rear garden with potential for off road parking

Council Tax Band

A

Energy Efficiency Rating (EPC)

Current Rating D

Services

Interested parties are requested to make their own enquiries to the relevant authorities as to the availability of services.

Local Authority

Norwich City Council

Solicitors

Howes Percival (Norwich), Ref: Karina Frudd, Tel: 01603580044

Important Notice to Prospective Buyers:

We draw your attention to the Special Conditions of Sale within the Legal Pack, referring to other charges in addition to the purchase price which may become payable. Such costs may include Search Fees, reimbursement of Sellers costs and Legal Fees, and Transfer Fees amongst others.

Additional Fees

Buyer's Premium - £600 inc VAT payable on exchange of contracts.

Administration Charge - 0.3% inc VAT of the purchase price, subject to a minimum of £1200 inc VAT, payable on exchange of contracts.

Disbursements - Please see the legal pack for any disbursements listed that may become payable by the purchaser on completion.

View Larger Map

Disclaimer: The map preview provided above is for general guidance only and may not accurately reflect the exact location or surrounding buildings. Prospective buyers and interested parties are strongly advised to independently verify the precise location and surroundings before bidding.