For Sale By Auction | 11:00, 20 March 2024 | Lot 17

5 Yarmouth Road, Thorpe-Next-Haddiscoe, Norwich, Norfolk NR14 6PU

Sold £202,000

  • Semi-Detached House
  • 2 Bedrooms
  • Tenure: Freehold

Call the team on 01603 505 100 for more information

Auction Date

Wed 20/03/2024

Auction Time

11:00

Auction Venue

Livestream Auction

A semi-detached two bedroom cottage sold subject to the existing tenancy producing £320 pcm (£3,840 pa)

A delightfully situated semi detached two bedroom cottage overlooking and adjoining farmland, set in large gardens with off road parking space and driveway. The property is double glazed and has electric heating. It is being sold subject to the current assured shorthold tenancy which produces a rent of £320 per calendar month. Potential would exist for a renegotiation of the rent. Loddon and Beccles are the nearest towns whilst there are more local shops and amenities in Hales, Haddiscoe and Thurlton

Tenure

Freehold

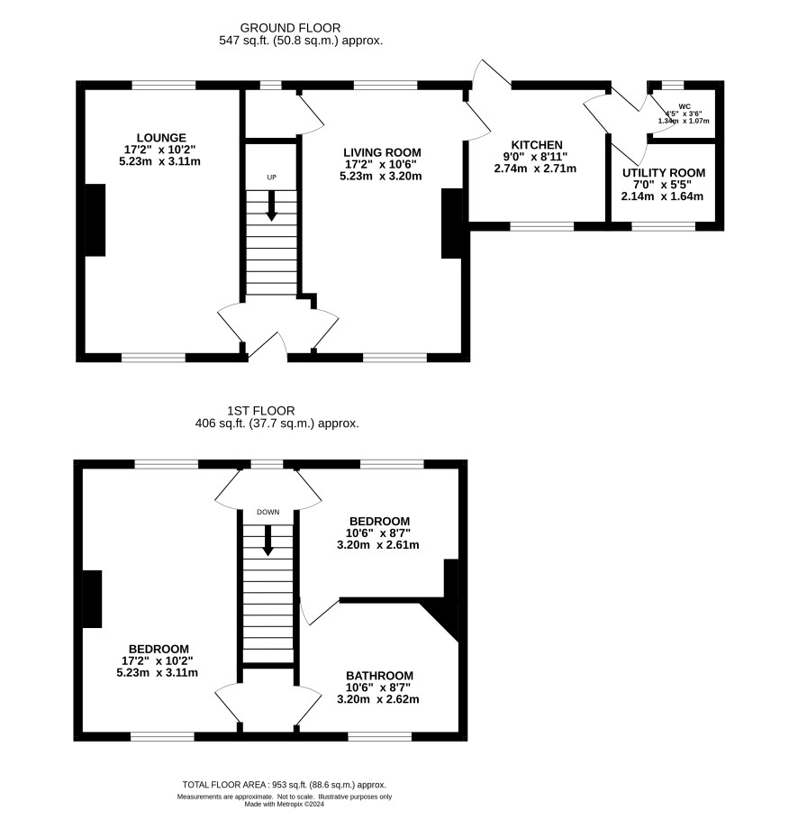
Ground Floor

Hall, lounge, dining room, kitchen, utility room, separate w.c.

First Floor

Landing, two bedrooms, bathroom

Outside

Large front side and rear gardens with off road parking and garage space

Tenancy

Assured shorthold tenancy commenced 25.09.2013 Rent £320 pcm

Council Tax Band

B

Viewings

Viewings have been arranged in conjunction with the tenant and this is on Saturday 16 March at 10.30am. To book an appointment please call the Norwich office.

Energy Efficiency Rating (EPC)

Current Rating E

Services

Interested parties are requested to make their own enquiries to the relevant authorities as to the availability of services.

Local Authority

South Norfolk Council

Solicitors

Mills and Reeve (Norwich), Ref: Joseph Notice, Tel: 01603693275

Important Notice to Prospective Buyers:

We draw your attention to the Special Conditions of Sale within the Legal Pack, referring to other charges in addition to the purchase price which may become payable. Such costs may include Search Fees, reimbursement of Sellers costs and Legal Fees, and Transfer Fees amongst others.

Additional Fees

Buyer's Premium - £600 inc VAT payable on exchange of contracts.

Administration Charge - 0.3% inc VAT of the purchase price, subject to a minimum of £1200 inc VAT, payable on exchange of contracts.

Disbursements - Please see the legal pack for any disbursements listed that may become payable by the purchaser on completion.

View Larger Map

Disclaimer: The map preview provided above is for general guidance only and may not accurately reflect the exact location or surrounding buildings. Prospective buyers and interested parties are strongly advised to independently verify the precise location and surroundings before bidding.