Postponed | Lot 92

The Plough Inn, Woodgate Road, Moulton Chapel, Spalding, Lincolnshire PE12 0XF

Postponed

  • Detached House
  • Tenure: Freehold

Call the team on 01733 889833 for more information

Auction Date

Wed 20/03/2024

Auction Time

11:00

Auction Venue

Livestream Auction

A detached former public house converted and refurbished throughout to provide a spacious family home

The Plough Inn has been converted and refurbished throughout offering three reception rooms, kitchen, utility/bathroom, with three bedrooms and a bathroom on the first floor. The house is located in the middle of the village in view of the Chapel. It would make an ideal Air B & B or a country get away. The property had planning permission approved for a double extension to the rear and a porch extension to the front of the house, though the planning has now lapsed. The village offers a public house and village butchers shop with more extensive facilities in Spalding and Peterborough.

Tenure

Freehold

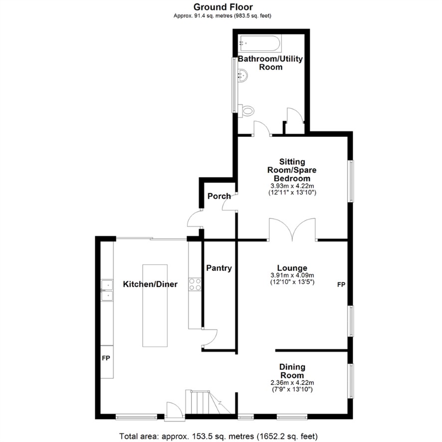
Ground floor

Kitchen/diner, dining room, Utility/bathroom, lounge, Sitting room/bedroom, first floor three bedrooms and a bathroom.

First floor

Three bedrooms and a bathroom.

Outside

Gated access to parking area with gardens.

Energy Efficiency Rating (EPC)

Current Rating E

Services

Interested parties are requested to make their own enquiries to the relevant authorities as to the availability of services.

Local Authority

South Holland District Council

Solicitors

22 Law, Ref: Claire Stanton, Tel: 0191 432 4408

Offered in association with

Sedge Homes

Important Notice to Prospective Buyers:

We draw your attention to the Special Conditions of Sale within the Legal Pack, referring to other charges in addition to the purchase price which may become payable. Such costs may include Search Fees, reimbursement of Sellers costs and Legal Fees, and Transfer Fees amongst others.

Additional Fees

Buyer's Premium - £1200 inc VAT payable on exchange of contracts.

Administration Charge - 0.3% inc VAT of the purchase price, subject to a minimum of £1200 inc VAT, payable on exchange of contracts.

Disbursements - Please see the legal pack for any disbursements listed that may become payable by the purchaser on completion.

View Larger Map

Disclaimer: The map preview provided above is for general guidance only and may not accurately reflect the exact location or surrounding buildings. Prospective buyers and interested parties are strongly advised to independently verify the precise location and surroundings before bidding.