For Sale By Auction | 11:00, 20 March 2024 | Lot 94

2 Tottenham Street, Great Yarmouth, Norfolk NR30 1EP

Sold £71,500

  • Terraced House
  • 3 Bedrooms
  • Tenure: Freehold

Call the team on 01603 505 100 for more information

Auction Date

Wed 20/03/2024

Auction Time

11:00

Auction Venue

Livestream Auction

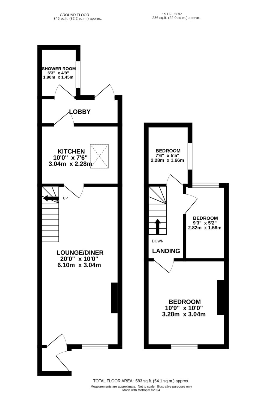
Vacant three bedroom terrace house requiring modernisation

This previously tenanted mid-terrace house is now vacant and in need of general improvement to realise its potential. The property has a through lounge/dining room, kitchen and shower room on the ground floor, with three bedrooms off the landing on the first floor. There is a gas central heating system, double glazing and a front garden with potential for off road parking for a small car. The property is within walking distance from the town centre, the beach and other useful amenities.

Tenure

Freehold

Ground Floor

Entrance porch, lounge/dinning room, kitchen, rear lobby, shower room

First Floor

Landing, three bedrooms

Outside

Front garden, small enclosed courtyard to the rear

Council Tax Band

A

Viewings

Viewings are by appointment only and the final one is on Tuesday 19 March. Please call the Norwich Office to book a viewing.

Energy Efficiency Rating (EPC)

Current Rating D

Services

Interested parties are requested to make their own enquiries to the relevant authorities as to the availability of services.

Local Authority

Great Yarmouth Borough Council

Solicitors

Chamberlins (Great Yarmouth), Ref: Rebekah Leach, Tel: 01493857621

Offered in association with

Normove

Important Notice to Prospective Buyers:

We draw your attention to the Special Conditions of Sale within the Legal Pack, referring to other charges in addition to the purchase price which may become payable. Such costs may include Search Fees, reimbursement of Sellers costs and Legal Fees, and Transfer Fees amongst others.

Additional Fees

Buyer's Premium - £600 inc VAT payable on exchange of contracts.

Administration Charge - 0.3% inc VAT of the purchase price, subject to a minimum of £1200 inc VAT, payable on exchange of contracts.

Disbursements - Please see the legal pack for any disbursements listed that may become payable by the purchaser on completion.

View Larger Map

Disclaimer: The map preview provided above is for general guidance only and may not accurately reflect the exact location or surrounding buildings. Prospective buyers and interested parties are strongly advised to independently verify the precise location and surroundings before bidding.