For Sale By Auction | 11:00, 01 May 2024 | Lot 25

4 Brickle Road, Stoke Holy Cross, Norwich, Norfolk NR14 8NE

Sold £206,000

  • Semi-Detached House
  • 3 Bedrooms
  • Tenure: Freehold

Call the team on 01603 505 100 for more information

Auction Date

Wed 01/05/2024

Auction Time

11:00

Auction Venue

Livestream Auction

A three bedroom semi-detached house within a large garden in need of modernisation

This three bedroom ex local authority house is vacant and ideal for owner occupiers, investors, or developers with potential to extend (stpp). The property has double glazing, gas central heating, and benefits from a large wrap around private garden. Stoke Holy Cross is a sought after village just three miles south of Norwich and within a mile of Poringland.

Tenure

Freehold

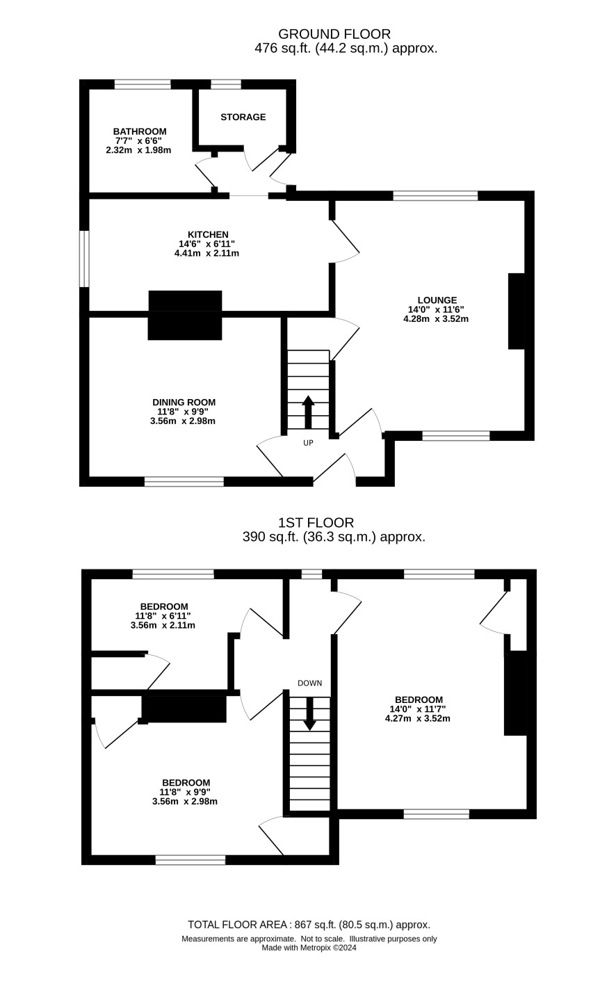
Ground Floor

Entrance hall, dining room, lounge, kitchen, bathroom, store room

First Floor

Landing, three bedrooms

Outside

Large wrap around gardens with off road parking

Council Tax Band

B

Viewings

Open viewings are arranged and the next are on Wednesday 10 April. To book an appointment please call the Norwich office.

Energy Efficiency Rating (EPC)

Current Rating D

Services

Interested parties are requested to make their own enquiries to the relevant authorities as to the availability of services.

Local Authority

South Norfolk Council

Solicitors

Howes Percival (Norwich), Ref: Sally Rackham, Tel: 01603 284250

Important Notice to Prospective Buyers:

We draw your attention to the Special Conditions of Sale within the Legal Pack, referring to other charges in addition to the purchase price which may become payable. Such costs may include Search Fees, reimbursement of Sellers costs and Legal Fees, and Transfer Fees amongst others.

Additional Fees

Buyer's Premium - £900 inc VAT payable on exchange of contracts.

Administration Charge - 0.3% inc VAT of the purchase price, subject to a minimum of £1200 inc VAT, payable on exchange of contracts.

Disbursements - Please see the legal pack for any disbursements listed that may become payable by the purchaser on completion.

View Larger Map

Disclaimer: The map preview provided above is for general guidance only and may not accurately reflect the exact location or surrounding buildings. Prospective buyers and interested parties are strongly advised to independently verify the precise location and surroundings before bidding.