For Sale By Auction | 11:00, 01 May 2024 | Lot 103

5 Trafalgar Square, Great Yarmouth, Norfolk NR30 2EL

Sold £108,000

  • Terraced House
  • 4 Bedrooms
  • Tenure: Freehold

Call the team on 01603 505 100 for more information

Auction Date

Wed 01/05/2024

Auction Time

11:00

Auction Venue

Livestream Auction

Bay fronted four bedroom mid-terrace house close to sea front

This spacious mid terrace property has accommodation over three floors and benefits from gas central heating and is double glazed throughout. It was previously let, and is now to be sold with vacant possession. It is situated just north east of the town centre near the sea front close to a range of services and amenities. Of interest to cash buyers due to the single skin rear extension this would be an ideal purchase for an owner occupier or investor.

Tenure

Freehold

Outside

Enclosed courtyard space which has been covered for extra storage space

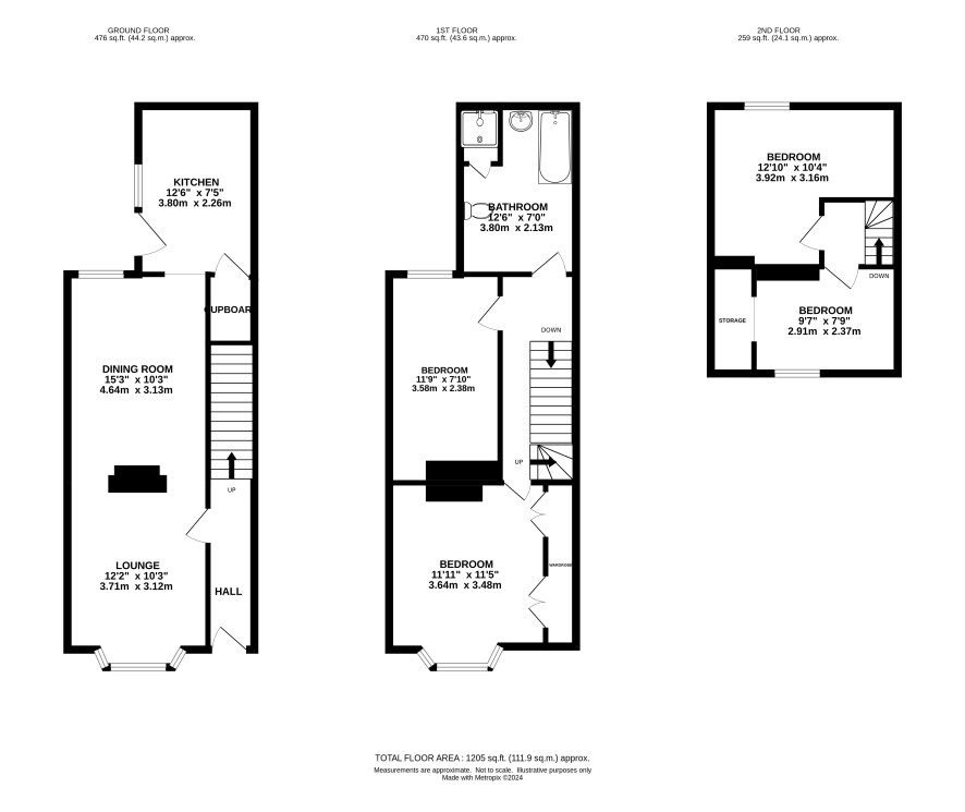
Ground floor

Entrance hall, lounge, dining room, kitchen

First floor

Landing, two bedrooms, bathroom

Second floor

Landing, two bedrooms

Council Tax Band

B

Viewings

Viewings can be arranged and the final one is on Monday 29 April. To book an appointment please call the Norwich office.

Energy Efficiency Rating (EPC)

Current Rating D

Services

Interested parties are requested to make their own enquiries to the relevant authorities as to the availability of services.

Local Authority

Great Yarmouth Borough Council

Solicitors

Ashtons Legal (Norwich), Ref: Lauren Briggs, Tel: 01603 703070

Important Notice to Prospective Buyers:

We draw your attention to the Special Conditions of Sale within the Legal Pack, referring to other charges in addition to the purchase price which may become payable. Such costs may include Search Fees, reimbursement of Sellers costs and Legal Fees, and Transfer Fees amongst others.

Additional Fees

Buyer's Premium - £900 inc VAT payable on exchange of contracts.

Administration Charge - 0.3% inc VAT of the purchase price, subject to a minimum of £1200 inc VAT, payable on exchange of contracts.

Disbursements - Please see the legal pack for any disbursements listed that may become payable by the purchaser on completion.

View Larger Map

Disclaimer: The map preview provided above is for general guidance only and may not accurately reflect the exact location or surrounding buildings. Prospective buyers and interested parties are strongly advised to independently verify the precise location and surroundings before bidding.