Withdrawn | Lot 98

The Gables Farm, 3 Hemsby Road, Martham, Great Yarmouth, Norfolk NR29 4PB

Withdrawn

  • Farm House
  • 4 Bedrooms
  • Tenure: Freehold

Call the team on 01603 505 100 for more information

Auction Date

Wed 01/05/2024

Auction Time

11:00

Auction Venue

Livestream Auction

Fire damaged Grade II listed farmhouse with separate detached annex bungalow

Of interest to cash buyers is this large prominent detached Grade II listed five bedroom thatched farmhouse along with a separate self contained detached annex bungalow known as Gables Cottage. The farmhouse was damaged by a fire in 2021 and needs remedial work and refurbishment especially to the rear section. The adjoining cottage however was unaffected and is in good decorative order and is double glazed. Both properties used to operate as separate successful holiday lets being close to the Norfolk Broads and coast. Both properties are on one title occupying a 0.12 acre plot and are being sold as one lot.

Tenure

Freehold

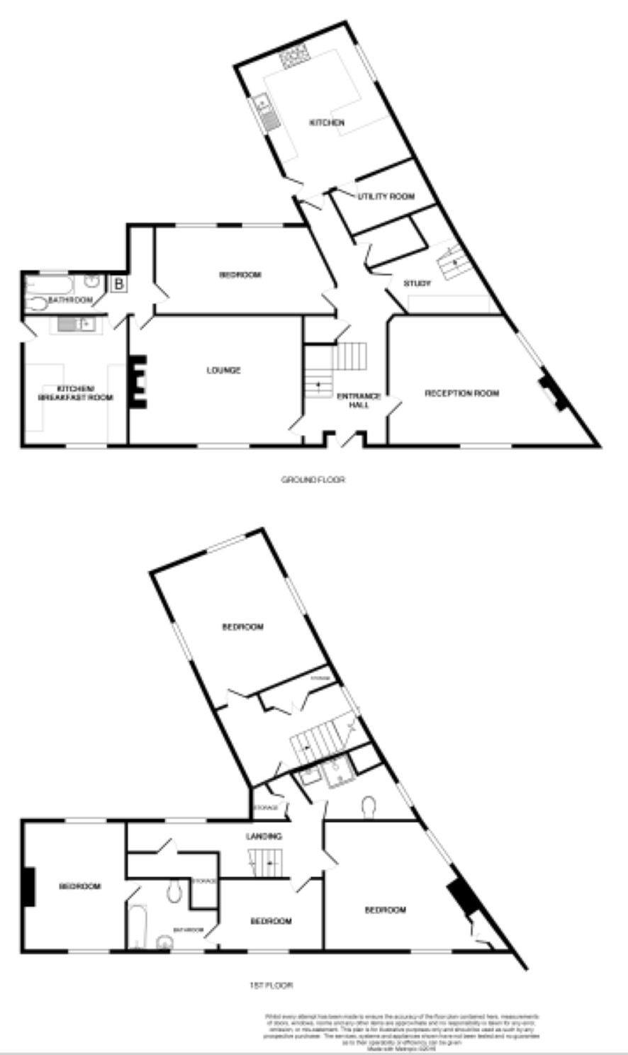
Gables Farm (no 3)

Ground floor: entrance hall, wc, dining room, lounge, secondary kitchen, rear hallway, bathroom, bedroom, inner hallway, kitchen, utility area, office area First floor: landing, bedroom, inner landing, shower room, three bedrooms, bathroom

Gables Cottage / Annexe (no 1)

Kitchen, utility room, lounge, bedroom, shower room

Outside

Wrought iron gated access into an area of tarmac driveway providing off street car parking. Gated access into an enclosed courtyard garden with timber shed.

Viewings

Viewings are being arranged by appointment only and the final one is Tuesday 30 April. Please contact the Norwich Office to arrange an appointment.

Planning

Listed building consent was granted by Great Yarmouth Borough Council on 3rd February 2022 for proposed reinstatement of the roof and the thatched roof covering to the rear addition of the property. Application number 06/21/1009/LB. Further details and plans can be found on the public access website of Great Yarmouth Borough Council great-yarmouth.gov.uk/planning.

Energy Efficiency Rating (EPC)

Current Rating G

Services

Interested parties are requested to make their own enquiries to the relevant authorities as to the availability of services.

Local Authority

Great Yarmouth Borough Council

Solicitors

Norton Peskett (Gorleston), 66A-67 Bells Road, Ref: Amanda Stephenson, Tel: 01493 652204

Offered in association with

Darby and Liffen

Important Notice to Prospective Buyers:

We draw your attention to the Special Conditions of Sale within the Legal Pack, referring to other charges in addition to the purchase price which may become payable. Such costs may include Search Fees, reimbursement of Sellers costs and Legal Fees, and Transfer Fees amongst others.

Additional Fees

Buyer's Premium - £900 inc VAT payable on exchange of contracts.

Administration Charge - 0.3% inc VAT of the purchase price, subject to a minimum of £1200 inc VAT, payable on exchange of contracts.

Disbursements - Please see the legal pack for any disbursements listed that may become payable by the purchaser on completion.

View Larger Map

Disclaimer: The map preview provided above is for general guidance only and may not accurately reflect the exact location or surrounding buildings. Prospective buyers and interested parties are strongly advised to independently verify the precise location and surroundings before bidding.