For Sale By Auction | 11:00, 01 May 2024 | Lot 11

2 Julians Way, Pulham Market, Diss, Norfolk IP21 4TJ

Sold £227,000

  • Semi-Detached House
  • 3 Bedrooms
  • Tenure: Freehold

Call the team on 01603 505 100 for more information

Auction Date

Wed 01/05/2024

Auction Time

11:00

Auction Venue

Livestream Auction

Three bedroom semi detached house in need of updating and redecoration

This three bedroom semi detached house requires a program of modernisation or potential extension to realise its full potential. The property has a generous garden, off road parking and a potential garage space. The property is now vacant and ideal for builder investor or first time purchaser. Pulham Market is a popular village with easy access onto the A140 Norwich to Ipswich Road and with easy travelling distance of Diss and Long Stratton where there are many useful amenities and shops.

Tenure

Freehold

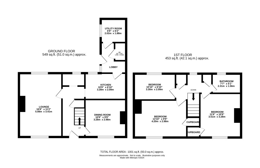
Ground Floor

Hall, lounge, dining room, kitchen, utility room, cloakroom

First Floor

Landing, three bedrooms, bathroom

Outside

Front garden with driveway and path leading to generous and private rear garden

Council Tax Band

B

Viewing

Viewings are being organised and the next opportunity is on Tuesday 23 April. Please contact the Norwich Office to book your appointment.

Energy Efficiency Rating (EPC)

Current Rating E

Services

Interested parties are requested to make their own enquiries to the relevant authorities as to the availability of services.

Local Authority

South Norfolk Council

Solicitors

Leathes Prior (The Close), Ref: Rachael Hughes, Tel: 01603 281004

Important Notice to Prospective Buyers:

We draw your attention to the Special Conditions of Sale within the Legal Pack, referring to other charges in addition to the purchase price which may become payable. Such costs may include Search Fees, reimbursement of Sellers costs and Legal Fees, and Transfer Fees amongst others.

Additional Fees

Buyer's Premium - £720 inc VAT payable on exchange of contracts.

Administration Charge - 0.3% inc VAT of the purchase price, subject to a minimum of £1200 inc VAT, payable on exchange of contracts.

Disbursements - Please see the legal pack for any disbursements listed that may become payable by the purchaser on completion.

View Larger Map

Disclaimer: The map preview provided above is for general guidance only and may not accurately reflect the exact location or surrounding buildings. Prospective buyers and interested parties are strongly advised to independently verify the precise location and surroundings before bidding.