For Sale By Auction | 11:00, 01 May 2024 | Lot 84

The Cottage, Wyards Lane, Thurston, Bury St. Edmunds, Suffolk IP31 3SQ

Sold After

  • Detached House
  • 2 Bedrooms
  • Tenure: Freehold

Call the team on 01473 558 888 for more information

Auction Date

Wed 01/05/2024

Auction Time

11:00

Auction Venue

Livestream Auction

Detached two bedroom cottage situated in the Suffolk country side, only a twenty minute drive from Bury St Edmunds

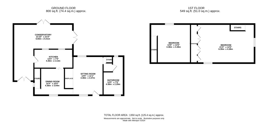
A characterful detached cottage situated on 0.13 acres, benefitting from a conservatory to the rear and side of the property overlooking the garden, lounge with wood burner, dining room and large bathroom. Upstairs has two double bedrooms, each accessed via separate staircases with the master featuring fitted wardrobes. Please be advised we are also selling 'Syringa' which is a derelict detached cottage immediately next door.

Tenure

Freehold

Viewing Details

Viewings by appointment only on the following dates: EXTRA DATE ADDED Monday 29th April 10:30am Friday 12th April 12:00pm Thursday 18th April 10:30am Tuesday 23rd April 13:00pm

Council Tax Band

C

Energy Efficiency Rating (EPC)

Current Rating Please refer to Legal Pack

Services

Interested parties are requested to make their own enquiries to the relevant authorities as to the availability of services.

Local Authority

Mid Suffolk District Council

Solicitors

Burnett Barker, Ref: Rania Clarke, Tel: 01284 701131

Important Notice to Prospective Buyers:

We draw your attention to the Special Conditions of Sale within the Legal Pack, referring to other charges in addition to the purchase price which may become payable. Such costs may include Search Fees, reimbursement of Sellers costs and Legal Fees, and Transfer Fees amongst others.

Additional Fees

Buyer's Premium - £1140 inc VAT payable on exchange of contracts.

Administration Charge - 0.3% inc VAT of the purchase price, subject to a minimum of £1200 inc VAT, payable on exchange of contracts.

Disbursements - Please see the legal pack for any disbursements listed that may become payable by the purchaser on completion.

View Larger Map

Disclaimer: The map preview provided above is for general guidance only and may not accurately reflect the exact location or surrounding buildings. Prospective buyers and interested parties are strongly advised to independently verify the precise location and surroundings before bidding.