Sold Prior | Lot 116

35 Regent Road, Lowestoft, Suffolk NR32 1PB

Sold Prior

  • End of Terrace House
  • 3 Bedrooms
  • Tenure: Freehold

Call the team on 01603 505 100 for more information

Auction Date

Wed 01/05/2024

Auction Time

11:00

Auction Venue

Livestream Auction

Substantial bay fronted Victorian end terraced property in need of some improvements throughout, situated in the Suffolk seaside town of Lowestoft

This substantial bay fronted Victorian property is situated convenient for the High Street within the Suffolk coastal town of Lowestoft. The property is in need of some modernisation and decoration as structural repairs for subsidence have been completed and certified by the insurance company, all documentation for this can be provided and the property is still currently insured. The property has retained many period features over the decades to include high ceilings, ornate plaster ceiling roses and plinths. Offering two large reception rooms, dining room, kitchen on the ground floor and three generous bedrooms and family bathroom on the first floor. To the front of the property there is a small walled garden with alley to the side providing access to the rear south facing garden.

Tenure

Freehold

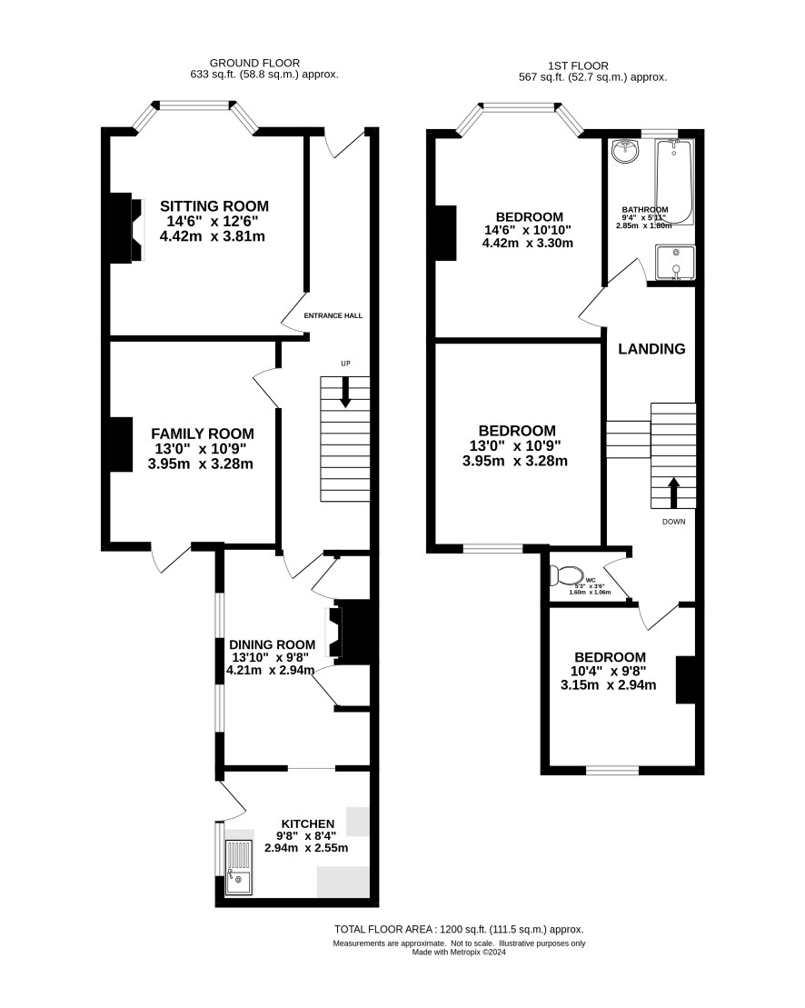
Ground floor

Entrance hall, two generous reception rooms, dining room, kitchen.

First floor

Landing, three bedrooms, separate w.c, family bathroom

Outside

Brick walled enclosed front garden leading to the front entrance, alley way leads to the side providing access to the rear south facing garden.

Council Tax Band

B

Viewings

Open viewings are arranged and the next are on Monday 29 April. Please call the Norwich office to book an appointment.

Energy Efficiency Rating (EPC)

Current Rating D

Services

Interested parties are requested to make their own enquiries to the relevant authorities as to the availability of services.

Local Authority

East Suffolk Council

Solicitors

Norton Peskett (Lowestoft), Ref: Helen Munro, Tel: 01502 533000

Important Notice to Prospective Buyers:

We draw your attention to the Special Conditions of Sale within the Legal Pack, referring to other charges in addition to the purchase price which may become payable. Such costs may include Search Fees, reimbursement of Sellers costs and Legal Fees, and Transfer Fees amongst others.

Additional Fees

Buyer's Premium - £960 inc VAT payable on exchange of contracts.

Administration Charge - 0.3% inc VAT of the purchase price, subject to a minimum of £1200 inc VAT, payable on exchange of contracts.

Disbursements - Please see the legal pack for any disbursements listed that may become payable by the purchaser on completion.

View Larger Map

Disclaimer: The map preview provided above is for general guidance only and may not accurately reflect the exact location or surrounding buildings. Prospective buyers and interested parties are strongly advised to independently verify the precise location and surroundings before bidding.