Postponed | Lot 34

Flat 1, 1 Fore Hamlet, Ipswich, Suffolk IP3 8AA

Postponed

  • Flat
  • 2 Bedrooms
  • Tenure: Leasehold. 125 years from 2003

Call the team on 01473 558 888 for more information

Auction Date

Wed 12/06/2024

Auction Time

10:00

Auction Venue

Livestream Auction

A tenanted ground floor flat close to the Waterfront

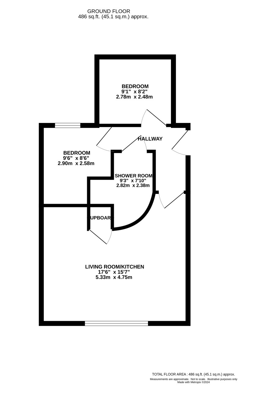
This ground floor flat is situated a stone's throw from the Waterfront and comes with the benefit of resident's parking. The property offers two bedroom accommodation with a good size open plan living room/kitchen and is currently let on an Assured Shorthold Tenancy originally put in place during April 2023 but extended for 12 months from April 2024 with a 6 month break clause and at a rent of £800 per calendar month (£9,600 per annum). A prime investment opportunity not to be missed.

Tenure

Leasehold. 125 years from 2003

Leasehold Information

Term: 125 years from 2003 (104 years remaining) Annual ground rent amount: £400 Annual service charge amount: £1,890

Council Tax Band

B

Viewing

Open Viewing are being scheduled. BOOKING AN APPOINTMENT IS ESSENTIAL. Please call 01473 558888 to make arrangements.

Energy Efficiency Rating (EPC)

Current Rating C

Services

Interested parties are requested to make their own enquiries to the relevant authorities as to the availability of services.

Local Authority

Ipswich Borough Council

Solicitors

22 Law, Ref: Claire Stanton, Tel: 0191 432 4408

Important Notice to Prospective Buyers:

We draw your attention to the Special Conditions of Sale within the Legal Pack, referring to other charges in addition to the purchase price which may become payable. Such costs may include Search Fees, reimbursement of Sellers costs and Legal Fees, and Transfer Fees amongst others.

Additional Fees

Buyer's Premium - £1140 inc VAT payable on exchange of contracts.

Administration Charge - 0.3% inc VAT of the purchase price, subject to a minimum of £1200 inc VAT, payable on exchange of contracts.

Disbursements - Please see the legal pack for any disbursements listed that may become payable by the purchaser on completion.

View Larger Map

Disclaimer: The map preview provided above is for general guidance only and may not accurately reflect the exact location or surrounding buildings. Prospective buyers and interested parties are strongly advised to independently verify the precise location and surroundings before bidding.