Sold Prior | Lot 89

6 Aidan Road, Quarrington, Sleaford, Lincolnshire NG34 8UU

Sold Prior

  • Detached House
  • 4 Bedrooms
  • Tenure: Freehold

Call the team on 01733 889833 for more information

Auction Date

Wed 12/06/2024

Auction Time

10:00

Auction Venue

Livestream Auction

A detached four bedroom house offered with vacant possession in Quarrington, Sleaford

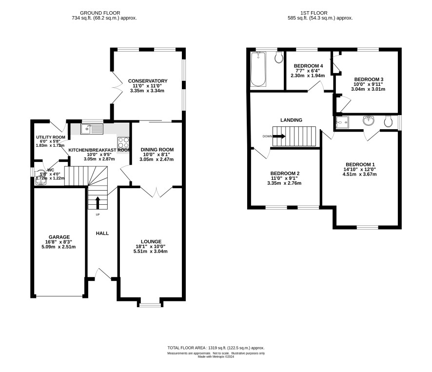
This four bedroom detached house is offered with two receptions, a conservatory, kitchen, utility and cloakroom w.c., master bedroom with en-suite shower, three further bedrooms and a bathroom. The property is offered in good order with gardens front and rear and a integral garage. Quarrington is located 1 mile outside Sleaford where shops and schooling can be found.

Tenure

Freehold

Ground floor

Hall, cloakroom w.c. lounge, dining room, conservatory, kitchen, utility room and w.c.

First Floor

Landing, master bedroom with en-suite shower, three further bedrooms and a bathroom

Outside

Gardens to front and rear. Integral garage.

Energy Efficiency Rating (EPC)

Current Rating D

Services

Interested parties are requested to make their own enquiries to the relevant authorities as to the availability of services.

Local Authority

South Kesteven District Council

Solicitors

Konexo, PO Box 66, Ref: Konexo, Tel: 0207 919 4500

Important Notice to Prospective Buyers:

We draw your attention to the Special Conditions of Sale within the Legal Pack, referring to other charges in addition to the purchase price which may become payable. Such costs may include Search Fees, reimbursement of Sellers costs and Legal Fees, and Transfer Fees amongst others.

Additional Fees

Buyer's Premium - £1200 inc VAT payable on exchange of contracts.

Administration Charge - 0.3% inc VAT of the purchase price, subject to a minimum of £1200 inc VAT, payable on exchange of contracts.

Disbursements - Please see the legal pack for any disbursements listed that may become payable by the purchaser on completion.

View Larger Map

Disclaimer: The map preview provided above is for general guidance only and may not accurately reflect the exact location or surrounding buildings. Prospective buyers and interested parties are strongly advised to independently verify the precise location and surroundings before bidding.