For Sale By Auction | 10:00, 12 June 2024 | Lot 100

364 London Road South, Lowestoft, Suffolk NR33 0BQ

*Guide | £350,000 - £375,000 (plus fees)

  • Terraced House
  • 7 Bedrooms
  • Tenure: Freehold

Call the team on 01603 505 100 for more information

Auction Date

Wed 12/06/2024

Auction Time

10:00

Auction Venue

Livestream Auction

Impressive Victorian property situated south of the river in a desirable area of Lowestoft. The property which is vacant is divided into three substantial apartments and has been providing a yield of £58,800 pa

Formerly the ground floor was a doctor's surgery and registered for commercial use, with two apartments on the first and second floors. The current owners purchased in 2013 and with planning consent changed use to residential and converted the surgery into a further apartment (planning ref: DC/18/4470/COU with East Suffolk Council). The apartments have been producing a rental yield when fully let of £58,800 pa, calculated at £40/room x 6 persons x 7 days x 35 weeks. However there is scope for the building and rental yields could be increased. There is interest from companies working on the Sizewell C project and windfarms locally. There is parking for three cars via gated access to the rear of the property.

Tenure

Freehold

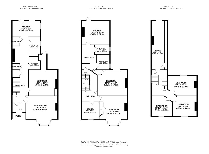
Ground Floor Apartment

Front porch, communal entrance hall, sitting room, two bedrooms, bathroom and kitchen

First Floor Apartment

Landing entrance to one bedroom apartment and entrance to three bedroom duplex apartment. One bedroom apartment: Hall, bedroom, shower room, kitchen & sitting room. Three bedroom apartment: Hall with stairs to second floor accommodation, kitchen, sitting room, bedroom with shower room

Duplex Apartment First & Second floor

Three bedroom apartment: First floor accommodation hall with stairs to second floor, kitchen and bedroom. Second floor accommodation landing, lounge. two bedrooms and family bathroom.

Exterior

Walled and gated front garden leads to entrance this area is paved for easy maintenance. Large gates open onto the rear garden which offers hardstanding for three vehicles, this could be turned into garden if required.

Council Tax Band

A

Viewings

Viewings are being arranged by appointment only and the next one is Monday 3rd and Thursday 6th June. Please contact the Norwich office to book an appointment.

Energy Efficiency Rating (EPC)

Current Rating D

Services

Interested parties are requested to make their own enquiries to the relevant authorities as to the availability of services.

Local Authority

East Suffolk Council

Solicitors

Ward Gethin Archer (Dereham), Ref: Tracy Guest, Tel: 01362 852918

Important Notice to Prospective Buyers:

We draw your attention to the Special Conditions of Sale within the Legal Pack, referring to other charges in addition to the purchase price which may become payable. Such costs may include Search Fees, reimbursement of Sellers costs and Legal Fees, and Transfer Fees amongst others.

Additional Fees

Buyer's Premium - £960 inc VAT payable on exchange of contracts.

Administration Charge - 0.3% inc VAT of the purchase price, subject to a minimum of £1200 inc VAT, payable on exchange of contracts.

Disbursements - Please see the legal pack for any disbursements listed that may become payable by the purchaser on completion.

View Larger Map

Disclaimer: The map preview provided above is for general guidance only and may not accurately reflect the exact location or surrounding buildings. Prospective buyers and interested parties are strongly advised to independently verify the precise location and surroundings before bidding.