Sold Prior | Lot 102

284 London Road South, Lowestoft, Suffolk NR33 0BG

Sold Prior

  • Terraced House
  • 7 Bedrooms
  • Tenure: Freehold

Call the team on 01603 505 100 for more information

Auction Date

Wed 12/06/2024

Auction Time

10:00

Auction Venue

Livestream Auction

Substantial four storey Victorian mid terrace house let producing £850 pcm (£10,200 pa)

This substantial seven bedroom four storey property is let to a long established tenant who has been in occupation for around twenty years. The current rent is £850 pcm (£10,200 pa). It is set within a highly sought after area known as 'Kirkley' of the seaside resort of Lowestoft. The property requires some improvement and offers generous rooms with high ceilings, typical for the era along with a spacious cellar. It is set back from the road with a front and rear garden. Ideal for an investor.

Tenure

Freehold

Basement

Usable room plus storage, used as mini gym.

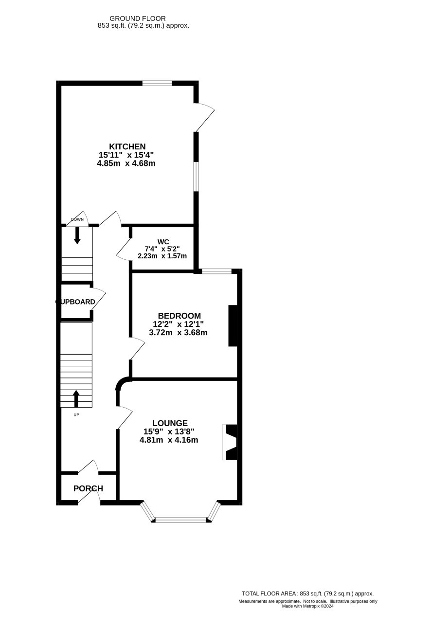
Ground floor

Lounge, kitchen, w.c., bedroom, access to garden

First floor

Bedroom, shower and separate w.c. Short staircase up to three bedrooms

Upper floor

Two bedrooms, shower room

Outside

Front and rear garden

Council Tax Band

B

Energy Efficiency Rating (EPC)

Current Rating D

Services

Interested parties are requested to make their own enquiries to the relevant authorities as to the availability of services.

Local Authority

Waveney District Council

Solicitors

Norton Peskett (Great Yarmouth), Ref: Matthew Breeze, Tel: 01493 849225

Important Notice to Prospective Buyers:

We draw your attention to the Special Conditions of Sale within the Legal Pack, referring to other charges in addition to the purchase price which may become payable. Such costs may include Search Fees, reimbursement of Sellers costs and Legal Fees, and Transfer Fees amongst others.

Additional Fees

Administration Charge - 0.3% inc VAT of the purchase price, subject to a minimum of £1200 inc VAT, payable on exchange of contracts.

Disbursements - Please see the legal pack for any disbursements listed that may become payable by the purchaser on completion.

View Larger Map

Disclaimer: The map preview provided above is for general guidance only and may not accurately reflect the exact location or surrounding buildings. Prospective buyers and interested parties are strongly advised to independently verify the precise location and surroundings before bidding.