For Sale By Auction | 11:00, 24 July 2024 | Lot 41

55 Burnham Road, North Creake, Fakenham, Norfolk NR21 9LA

Sold £172,000

  • Semi-Detached House
  • 3 Bedrooms
  • Tenure: Freehold

Call the team on 01553 777 773 for more information

Auction Date

Wed 24/07/2024

Auction Time

11:00

Auction Venue

Livestream Auction

A three bedroom semi-detached house in the village of North Creake, about three miles from Burnham Market

This three bedroom semi detached house is available with vacant possession and located in the village of North Creake. The property benefits from far reaching countryside views due to its elevated position from the road. The house briefly comprises living room, dining room, kitchen and bathroom to the ground floor, with three bedrooms and bathroom on the first floor. Outside there is a garden to front with steps down to the road and good sized garden to rear. North Creake is a rural village conveniently located between the market town of Fakenham and Burnham Market both offering a full range of shops, restaurants, Post Office, banks, doctor's surgeries and schools.

Tenure

Freehold

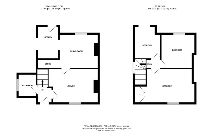
Ground Floor

Entrance hall, living room, dining room, kitchen, bathroom

First Floor

Three bedrooms

Outside

Gardens to front and rear

Energy Efficiency Rating (EPC)

Current Rating D

Services

Interested parties are requested to make their own enquiries to the relevant authorities as to the availability of services.

Local Authority

Kings Lynn and West Norfolk Borough Council

Solicitors

Howes Percival (Norwich), Ref: Sally Rackham, Tel: 01603 284250

Important Notice to Prospective Buyers:

We draw your attention to the Special Conditions of Sale within the Legal Pack, referring to other charges in addition to the purchase price which may become payable. Such costs may include Search Fees, reimbursement of Sellers costs and Legal Fees, and Transfer Fees amongst others.

Additional Fees

Buyer's Premium - £1800 inc VAT payable on exchange of contracts.

Administration Charge - 0.3% inc VAT of the purchase price, subject to a minimum of £1200 inc VAT, payable on exchange of contracts.

Disbursements - Please see the legal pack for any disbursements listed that may become payable by the purchaser on completion.

View Larger Map

Disclaimer: The map preview provided above is for general guidance only and may not accurately reflect the exact location or surrounding buildings. Prospective buyers and interested parties are strongly advised to independently verify the precise location and surroundings before bidding.