For Sale By Auction | 11:00, 24 July 2024 | Lot 4

94 Glenmore Gardens, Norwich, Norfolk NR3 2RW

Sold £181,000

  • Terraced House
  • 3 Bedrooms
  • Tenure: Freehold

Call the team on 01603 505 100 for more information

Auction Date

Wed 24/07/2024

Auction Time

11:00

Auction Venue

Livestream Auction

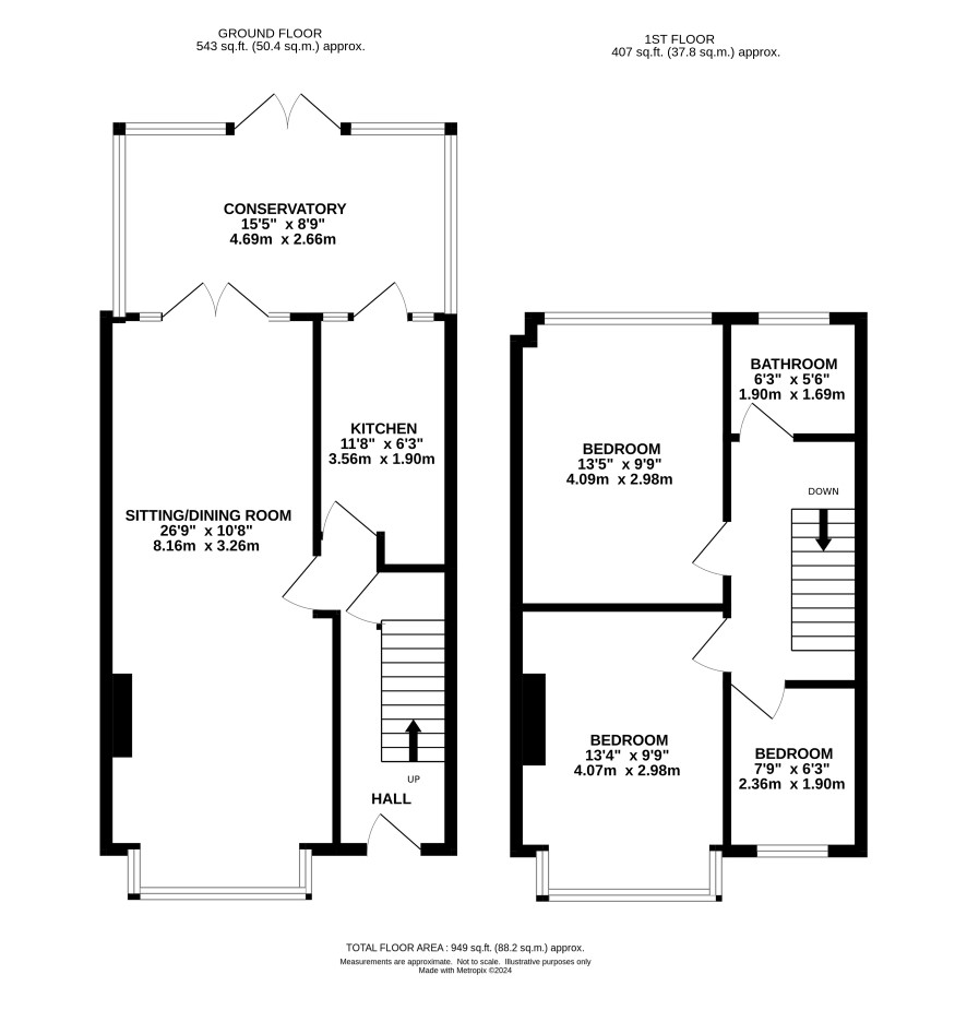
Vacant three bedroom mid town house requiring modernisation

Having been in the same ownership for many years, this three bedroom mid town house is now vacant and in need of a full restoration program. The property has a hall entrance, a large through lounge/dining room, kitchen and large conservatory. There are three bedrooms and a bathroom on the first floor. The gardens are of good size but are also in need of attention. The property is ideal for builder, investor or private buyer being well place for access into the city and to local shops and community facilities.

Tenure

Freehold

Ground Floor

Hall, lounge/dining room, kitchen, conservatory

First Floor

Landing, three bedrooms, bathroom

Outside

Front and rear gardens, on street parking

Council Tax Band

B

Viewings

Open viewings are arranged and the next are on Monday 22 July. To book an appointment please call the Norwich office.

Energy Efficiency Rating (EPC)

Current Rating E

Services

Interested parties are requested to make their own enquiries to the relevant authorities as to the availability of services.

Local Authority

Norwich City Council

Solicitors

Leathes Prior (The Close), Ref: Lily Beel, Tel: 01603 281185

Offered in association with

Normove

Important Notice to Prospective Buyers:

We draw your attention to the Special Conditions of Sale within the Legal Pack, referring to other charges in addition to the purchase price which may become payable. Such costs may include Search Fees, reimbursement of Sellers costs and Legal Fees, and Transfer Fees amongst others.

Additional Fees

Buyer's Premium - £600 inc VAT payable on exchange of contracts.

Administration Charge - 0.3% inc VAT of the purchase price, subject to a minimum of £1200 inc VAT, payable on exchange of contracts.

Disbursements - Please see the legal pack for any disbursements listed that may become payable by the purchaser on completion.

View Larger Map

Disclaimer: The map preview provided above is for general guidance only and may not accurately reflect the exact location or surrounding buildings. Prospective buyers and interested parties are strongly advised to independently verify the precise location and surroundings before bidding.