Postponed | Lot 14

Meadow Farm, Buck Brigg, Hanworth, Norwich, Norfolk NR11 7HH

Postponed

  • Detached Bungalow
  • 3 Bedrooms
  • Tenure: Freehold

Call the team on 01603 505 100 for more information

Auction Date

Wed 24/07/2024

Auction Time

11:00

Auction Venue

Livestream Auction

A delightfully situated bungalow set in magnificent landscaped gardens with enormous potential

Nestling in grounds of approximately 2.3 acres this detached three bedroom bungalow is now vacant and in need of modernisation. It is located in an idyllic rural setting with gardens lovingly landscaped by the previous owner to include many mature shrubs, roses, trees and ornamental features. It is approached via a long driveway providing a situation which is totally private and secluded. The property although modest could be significantly enhanced and would provide a splendid location for a magnificent family home, subject to planning approval. Rarely do properties with such potential come to the market and detailed inspection is highly recommended. The market town of Aylsham is with 5 miles and the North Norfolk coastline is also within a short drive. Norwich is approximately 13 miles to the south.

Tenure

Freehold

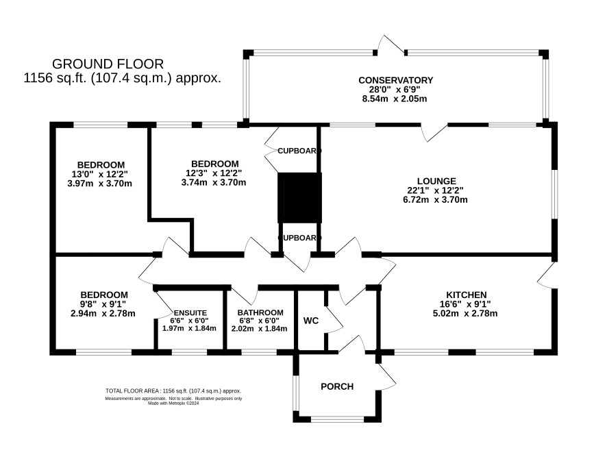
Accommodation

Entrance porch, inner hall, cloakroom, sitting room, conservatory, kitchen, three bedrooms one with ensuite shower room, bathroom

Outside

Long driveway opening to large parking area, magnificent landscaped gardens extending to approximately 2.3 acres. Within the grounds are a range of outbuildings, sheds and poly tunnels. An additional adjoining 1.3 acre paddock with outbuilding can be purchased as a separate lot.

Council Tax Band

C

Option to Purchase the Paddock

Please note that the successful purchaser of Meadow Farm (Lot 14) will be offered the option to purchase The Paddock (Lot 15) for a fixed price of £70,000.

Viewing

Open viewings are arranged and the next are on Tuesday 16 July. Please call the Norwich office to book an appointment.

Energy Efficiency Rating (EPC)

Current Rating E

Services

Interested parties are requested to make their own enquiries to the relevant authorities as to the availability of services.

Local Authority

North Norfolk District Council

Solicitors

Hansells (Norwich), Ref: Emma Bumphrey, Tel: 01603 615731

Important Notice to Prospective Buyers:

We draw your attention to the Special Conditions of Sale within the Legal Pack, referring to other charges in addition to the purchase price which may become payable. Such costs may include Search Fees, reimbursement of Sellers costs and Legal Fees, and Transfer Fees amongst others.

Additional Fees

Buyer's Premium - £720 inc VAT payable on exchange of contracts.

Administration Charge - 0.3% inc VAT of the purchase price, subject to a minimum of £1200 inc VAT, payable on exchange of contracts.

Disbursements - Please see the legal pack for any disbursements listed that may become payable by the purchaser on completion.

View Larger Map

Disclaimer: The map preview provided above is for general guidance only and may not accurately reflect the exact location or surrounding buildings. Prospective buyers and interested parties are strongly advised to independently verify the precise location and surroundings before bidding.