Sold Prior | Lot 31

28 Lincoln Close, Swanton Morley, Dereham, Norfolk NR20 4NB

Sold Prior

  • Chalet
  • 4 Bedrooms
  • Tenure: Freehold

Call the team on 01603 505 100 for more information

Auction Date

Wed 24/07/2024

Auction Time

11:00

Auction Venue

Livestream Auction

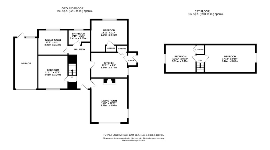
Detached four bedroom chalet in need of internal remedial work and updating situated in the desirable village of Swanton Morley

This detached four bedroom chalet would have started life as a bungalow and conversion has provided two additional bedrooms in the attic. Located within the desirable village of Swanton Morley which is a couple of miles north east of Dereham, the property is situated at the entrance of Lincoln Close, overlooking Greengate in the centre of the village. This property is in need of internal remedial work as it has damage from a water leak and some updating is required. This property offers generous front and rear gardens and would suit someone looking for a project.

Tenure

Freehold

Viewings

Viewings are being arranged and the next are on Friday, 19th July. Please call the Norwich office for an appointment.

Council Tax Band

C

Energy Efficiency Rating (EPC)

Current Rating G

Services

Interested parties are requested to make their own enquiries to the relevant authorities as to the availability of services.

Local Authority

Breckland Council

Solicitors

Spire Solicitors LLP (Watton), Ref: Natalie Briggs, Tel: 01953 882864

Important Notice to Prospective Buyers:

We draw your attention to the Special Conditions of Sale within the Legal Pack, referring to other charges in addition to the purchase price which may become payable. Such costs may include Search Fees, reimbursement of Sellers costs and Legal Fees, and Transfer Fees amongst others.

Additional Fees

Buyer's Premium - £960 inc VAT payable on exchange of contracts.

Administration Charge - 0.3% inc VAT of the purchase price, subject to a minimum of £1200 inc VAT, payable on exchange of contracts.

Disbursements - Please see the legal pack for any disbursements listed that may become payable by the purchaser on completion.

View Larger Map

Disclaimer: The map preview provided above is for general guidance only and may not accurately reflect the exact location or surrounding buildings. Prospective buyers and interested parties are strongly advised to independently verify the precise location and surroundings before bidding.