Sold Prior | Lot 101

110 Albany Gardens, Colchester, Essex CO2 8HU

Sold Prior

  • Flat
  • 2 Bedrooms
  • Tenure: Leasehold. See Legal Pack

Call the team on 01473 558 888 for more information

Auction Date

Wed 24/07/2024

Auction Time

11:00

Auction Venue

Livestream Auction

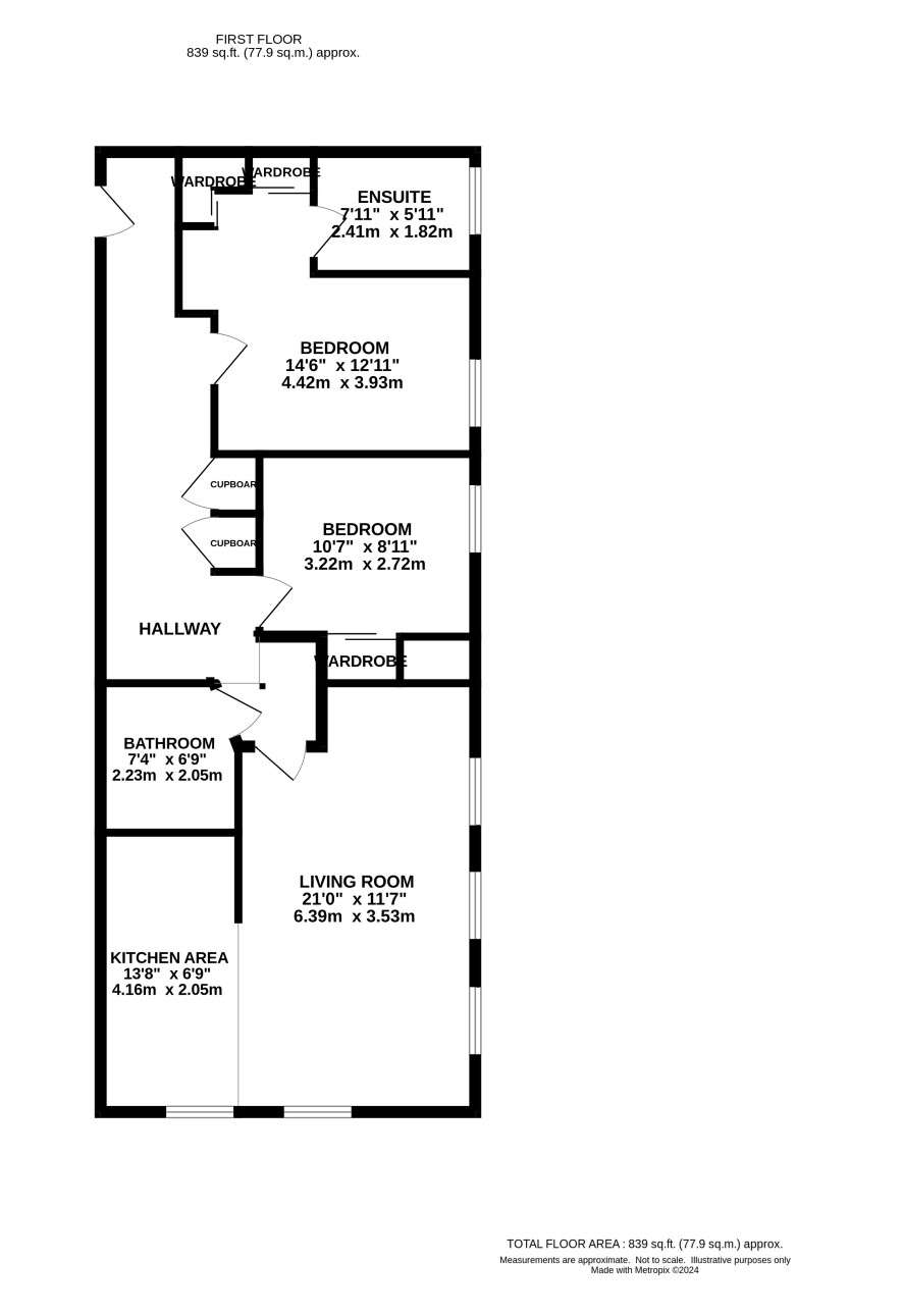
A spacious first floor flat with parking space

Situated in the suburb of Hythe within a couple of miles of Colchester city centre and convenient for the University and train station is this well proportioned first floor flat The property offers two bedroom (one en-suite) accommodation with open plan style living including a 21' lounge space and a fitted kitchen area with integrated appliances. An allocated parking space is included and the property offers potential for a strong rental yield making it a first class investment opportunity.

Tenure

Leasehold. See Legal Pack

Lease details

155 years from 1 January 2004 (135 years remaining) Service Charge - tbc Grount Rent - tbc

Council Tax Band

B

Viewing

Open Viewings have been scheduled as follows: Wed 10th July at 10.00am Mon 15th July at 1.00pm Thurs 18th July at 3.00pm BOOKING AN APPOINTMENT IS ESSENTIAL Please call 01473 558888 to make arrangements

Energy Efficiency Rating (EPC)

Current Rating C

Services

Interested parties are requested to make their own enquiries to the relevant authorities as to the availability of services.

Local Authority

Essex County Council

Solicitors

TLT Conveyancing, TLT LLP, Ref: TLT Conveyancing, Tel: 03330060000

Important Notice to Prospective Buyers:

We draw your attention to the Special Conditions of Sale within the Legal Pack, referring to other charges in addition to the purchase price which may become payable. Such costs may include Search Fees, reimbursement of Sellers costs and Legal Fees, and Transfer Fees amongst others.

Additional Fees

Buyer's Premium - £1200 inc VAT payable on exchange of contracts.

Administration Charge - 0.3% inc VAT of the purchase price, subject to a minimum of £1200 inc VAT, payable on exchange of contracts.

Disbursements - Please see the legal pack for any disbursements listed that may become payable by the purchaser on completion.

View Larger Map

Disclaimer: The map preview provided above is for general guidance only and may not accurately reflect the exact location or surrounding buildings. Prospective buyers and interested parties are strongly advised to independently verify the precise location and surroundings before bidding.