Withdrawn | Lot 6

4 Neville Road, Norwich, Norfolk NR7 8DS

Withdrawn

  • Semi-Detached House
  • 3 Bedrooms
  • Tenure: Freehold

Call the team on 01603 505 100 for more information

Auction Date

Wed 23/10/2024

Auction Time

11:00

Auction Venue

Livestream Auction

Three bedroom semi detached house in need of complete refurbishment

Of interest to cash buyers is this fire damaged three bedroom semi detached house. Following a fire nearly a year ago in November 2023 the property requires a complete programme of repair and refurbishment to realise its full potential. It is conveniently located around two miles north of the city centre near the outer ring road close to a range of services and amenities. An ideal purchase for a builder / developer

Tenure

Freehold

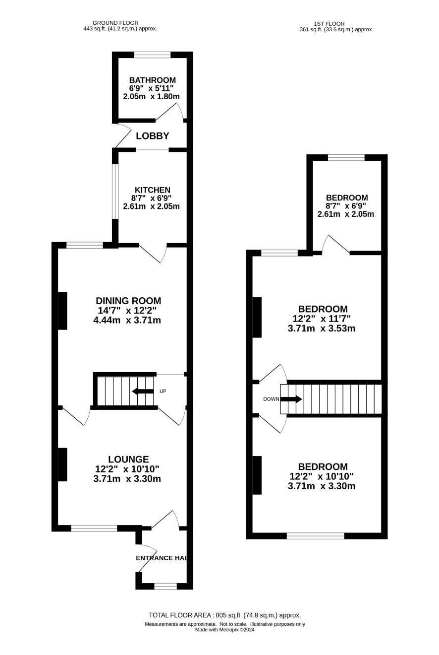
Ground floor

Entrance hall, lounge, dining room, kitchen, bathroom

First floor

Three bedrooms

Outside

Small front garden and rear L shaped garden

Viewings

Viewings are by appointment only - the next are on Monday 14 October. To book a time slot please call the Norwich office.

Energy Efficiency Rating (EPC)

Current Rating E

Services

Interested parties are requested to make their own enquiries to the relevant authorities as to the availability of services.

Local Authority

Broadland District Council

Solicitors

TLT Conveyancing, TLT LLP, Ref: TLT Conveyancing, Tel: 03330060000

Important Notice to Prospective Buyers:

We draw your attention to the Special Conditions of Sale within the Legal Pack, referring to other charges in addition to the purchase price which may become payable. Such costs may include Search Fees, reimbursement of Sellers costs and Legal Fees, and Transfer Fees amongst others.

Additional Fees

Buyer's Premium - £1200 inc VAT payable on exchange of contracts.

Administration Charge - 0.3% inc VAT of the purchase price, subject to a minimum of £1200 inc VAT, payable on exchange of contracts.

Disbursements - Please see the legal pack for any disbursements listed that may become payable by the purchaser on completion.

View Larger Map

Disclaimer: The map preview provided above is for general guidance only and may not accurately reflect the exact location or surrounding buildings. Prospective buyers and interested parties are strongly advised to independently verify the precise location and surroundings before bidding.