For Sale By Auction | 11:00, 23 October 2024 | Lot 1

66 Portland Street, Norwich, Norfolk NR2 3LF

Sold £246,000

  • Terraced House
  • 3 Bedrooms
  • Tenure: Freehold

Call the team on 01603 505 100 for more information

Auction Date

Wed 23/10/2024

Auction Time

11:00

Auction Venue

Livestream Auction

An over the passage 3 bedroom terrace house in highly sought after location

Having been tenanted for a number of years this over the passage terrace house is now vacant and ready for a new owner to update and improve the property for owner occupation or to be a highly productive rental proposition. Properties in this area are extremely popular being within a short distance of the University, Norfolk and Norwich University hospital and less than a half a mile form Norwich City centre. The property has three bedrooms and a bathroom off the first floor landing, whilst on the ground floor, in addition to the two reception rooms, the property has a kitchen with breakfast area. Ideal therefore for first purchaser, investor or builder looking for a refurbishment project.

Tenure

Freehold

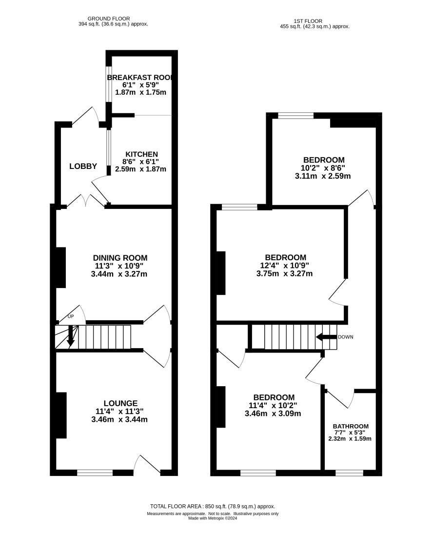
Ground Floor

Lounge, dining room, kitchen with breakfast area.

First Floor

Landing with separate access to three bedrooms and bathroom.

Outside

Small front garden, private rear garden

Council Tax

B

Viewings

Viewings are being scheduled and the next are Wednesday 16 October Please call the Norwich Office to make an appointment.

Energy Efficiency Rating (EPC)

Current Rating D

Services

Interested parties are requested to make their own enquiries to the relevant authorities as to the availability of services.

Local Authority

Norwich City Council

Solicitors

Spire Solicitors LLP (Norwich), Ref: Tanith Spray, Tel: 01603 677077

Important Notice to Prospective Buyers:

We draw your attention to the Special Conditions of Sale within the Legal Pack, referring to other charges in addition to the purchase price which may become payable. Such costs may include Search Fees, reimbursement of Sellers costs and Legal Fees, and Transfer Fees amongst others.

Additional Fees

Buyer's Premium - £600 inc VAT payable on exchange of contracts.

Administration Charge - 0.3% inc VAT of the purchase price, subject to a minimum of £1200 inc VAT, payable on exchange of contracts.

Disbursements - Please see the legal pack for any disbursements listed that may become payable by the purchaser on completion.

View Larger Map

Disclaimer: The map preview provided above is for general guidance only and may not accurately reflect the exact location or surrounding buildings. Prospective buyers and interested parties are strongly advised to independently verify the precise location and surroundings before bidding.