Postponed | Lot 34

Dominion, Dereham Road, Litcham, King's Lynn, Norfolk PE32 2RW

Postponed

  • Detached House
  • Tenure: Freehold

Call the team on 01603 505 100 for more information

Auction Date

Wed 23/10/2024

Auction Time

11:00

Auction Venue

Livestream Auction

Picturesque detached cottage in rural position requiring modernisation

Now vacant this quaint and interesting detached cottage offers adaptable accommodation that includes two reception rooms, kitchen, conservatory and bathroom on the ground floor, there are two bedrooms and a landing bedroom on the first floor. The property was originally built in 1810 but was extended in the late 1970's. The generous plot includes ample space to extend (STP) and the property has a garage, store and potential off road parking for a number of vehicles. The site was previously used as a licensed dog kennel business although the property could have a wide range of alternative uses subject to planning. The cottage is situated on the fringe of Litcham village surrounded by farmland. There is a well-respected all-through school for children aged 4-16, a variety of shops, a pub and church within the village. The market towns of Dereham and Swaffham are within easy reach.

Tenure

Freehold

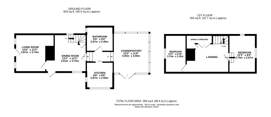
Ground Floor

Sitting room, dining hall, kitchen, conservatory, bathroom

First Floor

Landing bedroom, two further bedrooms

Outside

Generous gardens extending to a fifth of an acre adjoining farmland, with driveway, garage, store shed, large concrete pad, formally the position of the kennels, however these have now been removed. The gardens are private and well screened from the road.

Council Tax Band

A

Viewings

Open viewings have been arranged for Thursday 7 and Monday 11 November. To book an appointment please call the Norwich office.

Energy Efficiency Rating (EPC)

Current Rating F

Services

Interested parties are requested to make their own enquiries to the relevant authorities as to the availability of services.

Local Authority

Breckland Council

Solicitors

Fosters (Lowestoft), Ref: Kelsey Marshall, Tel: 01502 370176

Important Notice to Prospective Buyers:

We draw your attention to the Special Conditions of Sale within the Legal Pack, referring to other charges in addition to the purchase price which may become payable. Such costs may include Search Fees, reimbursement of Sellers costs and Legal Fees, and Transfer Fees amongst others.

Additional Fees

Buyer's Premium - £720 inc VAT payable on exchange of contracts.

Administration Charge - 0.3% inc VAT of the purchase price, subject to a minimum of £1200 inc VAT, payable on exchange of contracts.

Disbursements - Please see the legal pack for any disbursements listed that may become payable by the purchaser on completion.

View Larger Map

Disclaimer: The map preview provided above is for general guidance only and may not accurately reflect the exact location or surrounding buildings. Prospective buyers and interested parties are strongly advised to independently verify the precise location and surroundings before bidding.