Postponed | Lot 64

13 Trap Road, Guilden Morden, Royston SG8 0JE

Postponed

  • Semi-Detached House
  • 2 Bedrooms
  • Tenure: Freehold

Call the team on 01733 889833 for more information

Auction Date

Wed 23/10/2024

Auction Time

11:00

Auction Venue

Livestream Auction

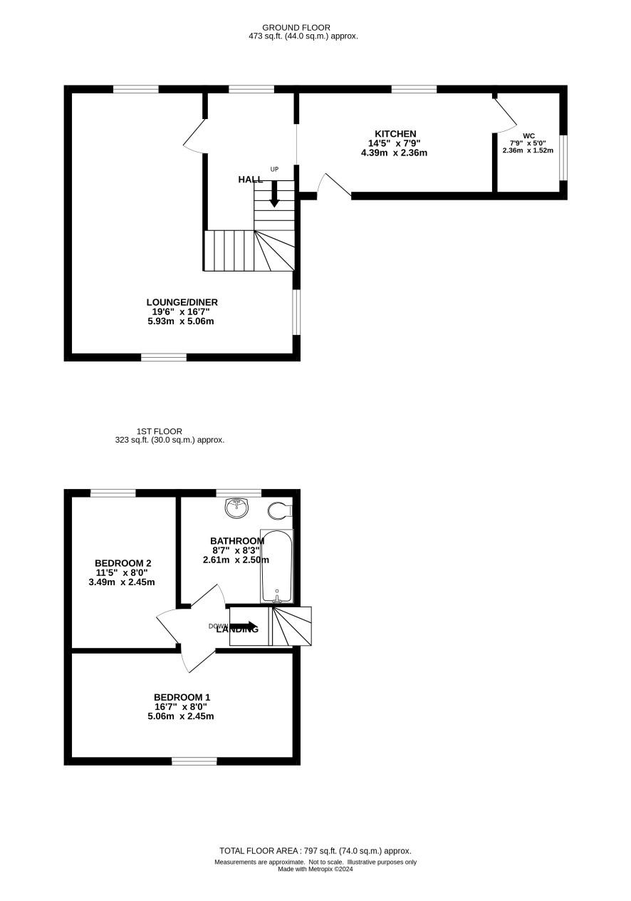
Two bed semi-detached house

A two bedroom semi-detached house in need of renovation ideal for a builder/developer siuated in a popular North Hertfordshire village. The property has been recently utilised as a builder/site office for the adjacant new development and is in need of renovation offering hall, lounge, kitchen and a w.c. with two bedrooms and a bathroom on the first floor. Parking to front and a garden to the rear. Guilden Morden offers a local shop and public house with more extensive facilities found at Royston together with a main line rail link into London Kings Cross and Cambridge.  

Tenure

Freehold

Ground Floor

Hall, lounge, kitchen and wc

First Floor

Two bedrooms and a bathroom

Outside

Parking to front and a garden at rear

Council Tax

C

Energy Efficiency Rating (EPC)

Current Rating E

Services

Interested parties are requested to make their own enquiries to the relevant authorities as to the availability of services.

Local Authority

South Cambridgeshire District Council

Solicitors

Thomson Webb and Corfield (Cambridge City), Ref: Pippa Carr, Tel: 01223 578087

Important Notice to Prospective Buyers:

We draw your attention to the Special Conditions of Sale within the Legal Pack, referring to other charges in addition to the purchase price which may become payable. Such costs may include Search Fees, reimbursement of Sellers costs and Legal Fees, and Transfer Fees amongst others.

Additional Fees

Buyer's Premium - £1200 inc VAT payable on exchange of contracts.

Administration Charge - 0.3% inc VAT of the purchase price, subject to a minimum of £1200 inc VAT, payable on exchange of contracts.

Disbursements - Please see the legal pack for any disbursements listed that may become payable by the purchaser on completion.

View Larger Map

Disclaimer: The map preview provided above is for general guidance only and may not accurately reflect the exact location or surrounding buildings. Prospective buyers and interested parties are strongly advised to independently verify the precise location and surroundings before bidding.