Withdrawn | Lot 24

The Old Forge Cottage and Garage, Norwich Road, Earl Stonham, Stowmarket, Suffolk IP14 5DR

Withdrawn

  • Detached House
  • 4 Bedrooms
  • Tenure: Freehold

Call the team on 01473 558 888 for more information

Auction Date

Wed 23/10/2024

Auction Time

11:00

Auction Venue

Livestream Auction

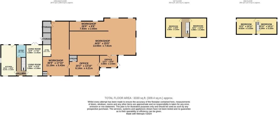
Business premises with detached four bedroom cottage on 0.42 acres (stms) with development opportunity (stpp)

Located on a busy stretch of the A140 in Earl Stonham, Old Forge Garage and Cottage can’t be missed due to it’s eye catching and bright yellow exterior, and with over 17,000 cars per day passing the site, it’s a fantastic spot for a business that wants to be noticed as well as benefitting from a well presented four bedroom cottage with large garden and off road parking for several cars. The site sits on a total of 0.42 acres. 

Tenure

Freehold

Garage

There is space on the forecourt for up to 28 cars and due to the high level of traffic passing, 17,000+ each day, this is a fantastic spot to catch the eye of passing motorists. The workshop is currently rented out at £1500 per month on flexible terms, so the new owner has the option to keep the tenants in situ or relocate their own business into the premises. There are two sales offices alongside the workshop, ready for someone to operate a car sales business alongside the MOT centre. There are no business rates due to small business rates relief.

Cottage

Old Forge Cottage is a lovely home with beautiful views across the fields to the rear of the property. With original features, this property is set across 3 floors and includes kitchen, lounge with French doors leading onto the garden, bathroom and four double bedrooms. There is extensive land to the side of the property which presents a development opportunity (STPP). Although the property is ideal for an owner/manager of the garage, it has previously been rented out to long term tenants and therefore could present another potential income stream for the buyer.

Energy Efficiency Rating (EPC)

Current Rating E

Services

Interested parties are requested to make their own enquiries to the relevant authorities as to the availability of services.

Local Authority

Mid Suffolk District Council

Solicitors

Gudgeons Prentice Solicitors, Ref: Robert Jackson, Tel: 01449 613101

Important Notice to Prospective Buyers:

We draw your attention to the Special Conditions of Sale within the Legal Pack, referring to other charges in addition to the purchase price which may become payable. Such costs may include Search Fees, reimbursement of Sellers costs and Legal Fees, and Transfer Fees amongst others.

Additional Fees

Buyer's Premium - £1140 inc VAT payable on exchange of contracts.

Administration Charge - £1200 inc VAT payable on exchange of contracts.

Disbursements - Please see the legal pack for any disbursements listed that may become payable by the purchaser on completion.

View Larger Map

Disclaimer: The map preview provided above is for general guidance only and may not accurately reflect the exact location or surrounding buildings. Prospective buyers and interested parties are strongly advised to independently verify the precise location and surroundings before bidding.