Postponed | Lot 10

11 Park House Court, Catton Grove Road, Norwich, Norfolk NR3 3QL

Postponed

  • Terraced House
  • 1 Bedroom
  • Tenure: Flying Freehold

Call the team on 01603 505 100 for more information

Auction Date

Wed 23/10/2024

Auction Time

11:00

Auction Venue

Livestream Auction

Vacant modern town house ideal for first time purchase or investment - excellent value

This well proportioned modern town house has been tenanted for a number of years but is now to be sold vacant and ready for a new occupier. The property, which is in good decorative order has a main bedroom over the passage, gas central heating, double glazing and has a private area of rear garden with an allocated parking space. A useful range of local shops and community facilities are nearby and there is regular public transport into the city centre.

Tenure

Flying Freehold

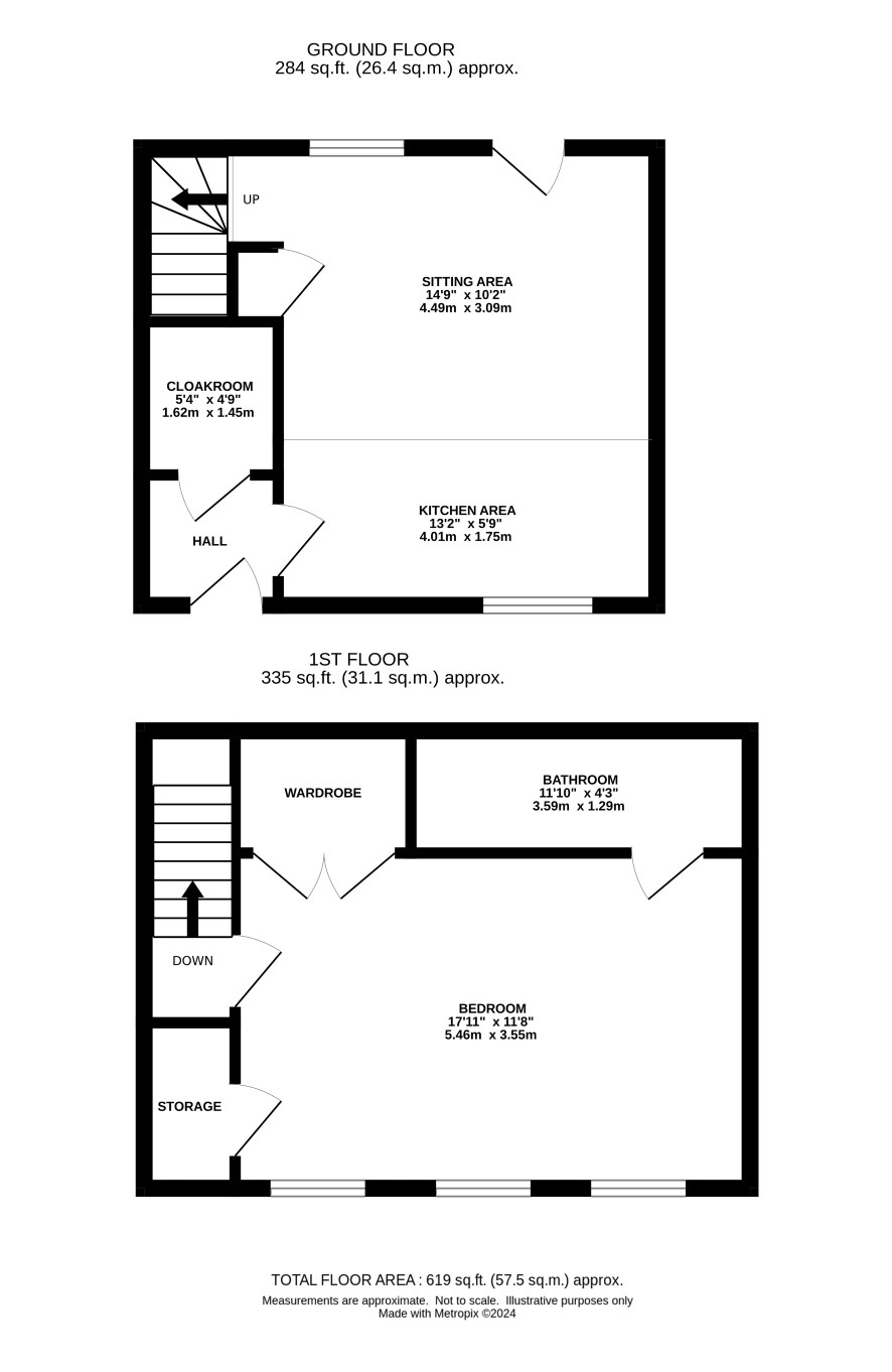
Ground Floor

Hall, cloakroom, kitchen/living room

First Floor

Landing, double bedroom, bathroom

Outside

Small front garden, paved rear garden, allocated parking space

Council Tax Band

A

Viewings

Viewings are being arranged and the first opportunity to view will be Friday 11 October Please contact the Norwich Office to book your appointment

Energy Efficiency Rating (EPC)

Current Rating C

Services

Interested parties are requested to make their own enquiries to the relevant authorities as to the availability of services.

Local Authority

Norwich City Council

Solicitors

Cozens-Hardy LLP, Ref: Dan Evans, Tel: 01603 724676

Important Notice to Prospective Buyers:

We draw your attention to the Special Conditions of Sale within the Legal Pack, referring to other charges in addition to the purchase price which may become payable. Such costs may include Search Fees, reimbursement of Sellers costs and Legal Fees, and Transfer Fees amongst others.

Additional Fees

Buyer's Premium - £420 inc VAT payable on exchange of contracts.

Administration Charge - 0.3% inc VAT of the purchase price, subject to a minimum of £1200 inc VAT, payable on exchange of contracts.

Disbursements - Please see the legal pack for any disbursements listed that may become payable by the purchaser on completion.

View Larger Map

Disclaimer: The map preview provided above is for general guidance only and may not accurately reflect the exact location or surrounding buildings. Prospective buyers and interested parties are strongly advised to independently verify the precise location and surroundings before bidding.