Sold Prior | Lot 12

Heath House, 99 Gertrude Road, Norwich, Norfolk NR3 4SG

Sold Prior

  • Residential Development
  • Tenure: Freehold

Call the team on 01603 505 100 for more information

Auction Date

Wed 23/10/2024

Auction Time

11:00

Auction Venue

Livestream Auction

Heath House was a former public house and is situated in a prominent position on the North side of the city centre of Norwich.

The pub closed its doors in 2021 and has since had full planning permission granted for a six bedroom detached house ref 24/00253/F. The owner has recently submitting planning for the application to be amended to three substantial flats, however this decision has been held due to Nutrient Neutrality (National Rivers Authority). This is a viable investment for anyone looking for an investment within the city and subject to planning could be returned into a public house again. NB: To the rear of the pub there is a bowling green which is being sold as separate lot within this auction. Make enquiries if you are interested in buying jointly prior to the auction.

Tenure

Freehold

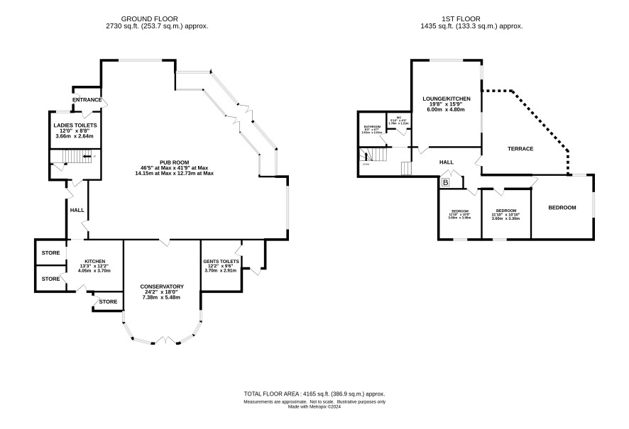
Ground Floor

Entrance hall that wraps the front of the building leads to the large former public bar area with further conservatory/dining space to the rear. There are Ladies and Gents pub toilets, kitchen with storerooms and hallway leading to the cellar entrance and stairway to upper floor.

First Floor

Landing leading to bathroom and separate w.c., large kitchen/living room space, and further corridors through to three bedrooms and roof terrace.

Outside

There is parking for several cars and a fenced garden area accessed via the carpark or conservatory.

Council Tax Band

A

Viewings

Viewings are being held and the next opportunities to view are on Friday 11 and Wednesday 16 October Please contact the Norwich office to book your appointment.

Energy Efficiency Rating (EPC)

Current Rating C

Services

Interested parties are requested to make their own enquiries to the relevant authorities as to the availability of services.

Local Authority

Norwich City Council

Solicitors

Isadore Goldman, Ref: Robert Pyke, Tel: 01603 611370

Important Notice to Prospective Buyers:

We draw your attention to the Special Conditions of Sale within the Legal Pack, referring to other charges in addition to the purchase price which may become payable. Such costs may include Search Fees, reimbursement of Sellers costs and Legal Fees, and Transfer Fees amongst others.

Additional Fees

Buyer's Premium - £960 inc VAT payable on exchange of contracts.

Administration Charge - 0.3% inc VAT of the purchase price, subject to a minimum of £1200 inc VAT, payable on exchange of contracts.

Disbursements - Please see the legal pack for any disbursements listed that may become payable by the purchaser on completion.

View Larger Map

Disclaimer: The map preview provided above is for general guidance only and may not accurately reflect the exact location or surrounding buildings. Prospective buyers and interested parties are strongly advised to independently verify the precise location and surroundings before bidding.