Sold Prior | Lot 22

48 Aldermans Drive, Peterborough, Cambridgeshire PE3 6AR

Sold Prior

  • Terraced House
  • 3 Bedrooms
  • Tenure: Freehold

Call the team on 01733 889833 for more information

Auction Date

Wed 11/12/2024

Auction Time

11:00

Auction Venue

Livestream Auction

A terraced three bedroom house in need of renovation situated well for the city and station.

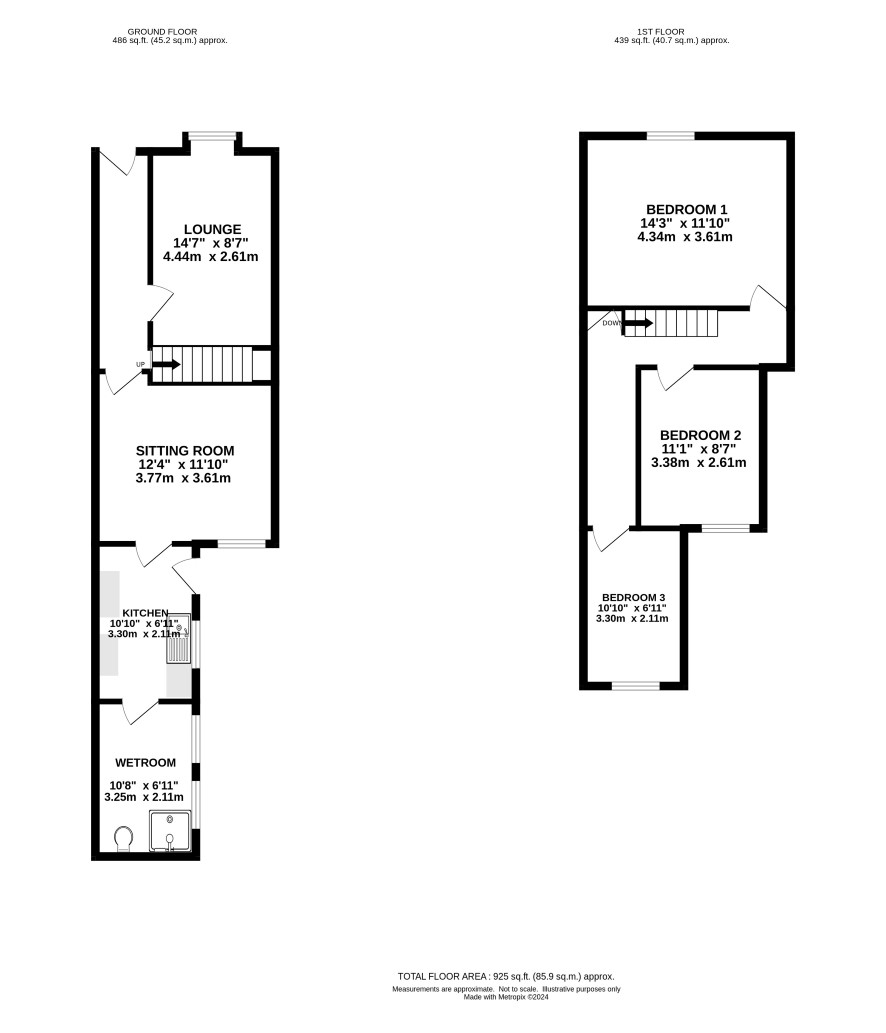
This three bedroom terraced house is in need of full modernisation located in Aldermans Drive with good access to the city centre and the station. The property offers two reception rooms, kitchen and a wet room on the ground floor. The first floor offers a landing and three bedrooms. Outside provides a garden. Peterborough offers extensive facilities together with a rail station into London Kings Cross.

Tenure

Freehold

Ground floor

Hall, lounge, sitting room, kitchen and a wet room.

First floor

Landing and three bedrooms.

Outside

Garden at rear.

Council Tax

B

Energy Efficiency Rating (EPC)

Current Rating D

Services

Interested parties are requested to make their own enquiries to the relevant authorities as to the availability of services.

Local Authority

Peterborough City Council

Solicitors

Buckles, Ref: Sarah Westwood, Tel: 01780 484530

Important Notice to Prospective Buyers:

We draw your attention to the Special Conditions of Sale within the Legal Pack, referring to other charges in addition to the purchase price which may become payable. Such costs may include Search Fees, reimbursement of Sellers costs and Legal Fees, and Transfer Fees amongst others.

Additional Fees

Buyer's Premium - £1200 inc VAT payable on exchange of contracts.

Administration Charge - 0.3% inc VAT of the purchase price, subject to a minimum of £1200 inc VAT, payable on exchange of contracts.

Disbursements - Please see the legal pack for any disbursements listed that may become payable by the purchaser on completion.

View Larger Map

Disclaimer: The map preview provided above is for general guidance only and may not accurately reflect the exact location or surrounding buildings. Prospective buyers and interested parties are strongly advised to independently verify the precise location and surroundings before bidding.