For Sale By Auction | 11:00, 11 December 2024 | Lot 19

19 Lichfield Avenue, Werrington, Peterborough, Cambridgeshire PE4 6PF

Sold £176,000

  • Semi-Detached House
  • 3 Bedrooms
  • Tenure: Freehold

Call the team on 01733 889833 for more information

Auction Date

Wed 11/12/2024

Auction Time

11:00

Auction Venue

Livestream Auction

A three bedroom semi-detached house in need of renovation in the popular suburb of Peterborough Werrington.

This three bedroom semi-detached house would be ideal for a developer with renovation needed and the potential to extend at the rear. The property offers a lounge/diner kitchen three bedrooms and a bathroom with a garage and gardens at the rear. Werrington is located North West of the city of Peterborough and offers local shops with more extensive facilities found in the city together with its main line rail link into London Kings Cross.

Tenure

Freehold

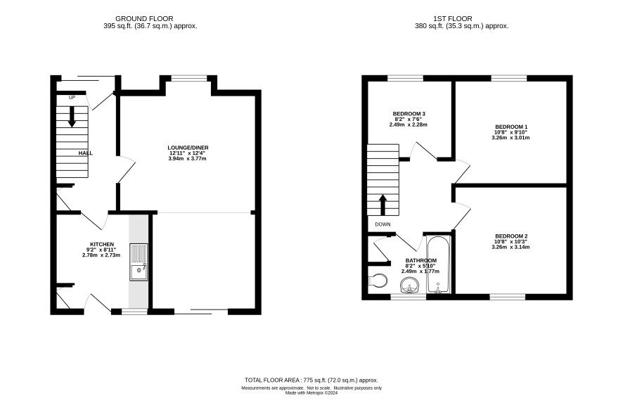
Ground floor

Hall, lounge/diner and a kitchen.

First Floor

Landing three bedrooms and a bathroom.

Outside

Gardens to front and rear with drive to side and access to a single garage.

Energy Efficiency Rating (EPC)

Current Rating G

Services

Interested parties are requested to make their own enquiries to the relevant authorities as to the availability of services.

Local Authority

Peterborough City Council

Solicitors

Double and Megson (Market Deeping), 11 Market Place, Ref: Double and Megson (Market Deeping)

Important Notice to Prospective Buyers:

We draw your attention to the Special Conditions of Sale within the Legal Pack, referring to other charges in addition to the purchase price which may become payable. Such costs may include Search Fees, reimbursement of Sellers costs and Legal Fees, and Transfer Fees amongst others.

Additional Fees

Administration Charge - 0.3% inc VAT of the purchase price, subject to a minimum of £1200 inc VAT, payable on exchange of contracts.

Disbursements - Please see the legal pack for any disbursements listed that may become payable by the purchaser on completion.

View Larger Map

Disclaimer: The map preview provided above is for general guidance only and may not accurately reflect the exact location or surrounding buildings. Prospective buyers and interested parties are strongly advised to independently verify the precise location and surroundings before bidding.