For Sale By Auction | 11:00, 11 December 2024 | Lot 33

21 Woodfield, Briston, Melton Constable, Norfolk NR24 2JY

Sold £162,000

  • Semi-Detached House
  • 3 Bedrooms
  • Tenure: Freehold

Call the team on 01603 505 100 for more information

Auction Date

Wed 11/12/2024

Auction Time

11:00

Auction Venue

Livestream Auction

Three bedroom semi-detached house in good decorative order set in good size 0.2 acre plot

Of interest to cash buyers is this three bedroom ex local authority semi-detached house of non standard construction, believed to be a Swedish design Post War prefabricated house. It has been owned by the same family for around 40 years and is now to be sold with vacant possession. The property is double glazed, has oil fired central heating and off road parking. The property is located in North Norfolk at the end of a cul de sac around five miles south of Holt.

Tenure

Freehold

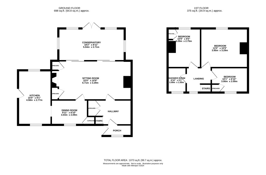
Ground floor

Entrance lobby, entrance hall, sitting room, conservatory, dining room, kitchen

First floor

Landing, three bedrooms, shower room

Outside

Front, side and rear garden, off road parking to front and side, greenhouse, garage, range of outbuildings

Note

There is a Section 157 of the Housing Act 1985 restriction. This applies as the property was sold under the Right to Buy by North Norfolk District Council before March 2006. It requires that a prospective purchaser must have lived or worked in Norfolk for at least three years (without a break) at the date of purchase. In the case of joint purchasers only one of the purchasers needs to have lived or worked in Norfolk for three years before their purchase. The restriction also applies if the owner lets the property. The tenants must have previously lived or worked in Norfolk for the three years before starting their tenancy. The restriction provides a pool of properties available for purchasers (and tenants) who have connections through residence or work to Norfolk, and does not prevent a property owner from selling or letting their property.

Council Tax Band

A

Viewing

Individual viewings can be arranged. Our next viewing will be on Wednesday 4 December. Please call the Norwich Office to book an appointment.

Energy Efficiency Rating (EPC)

Current Rating E

Services

Interested parties are requested to make their own enquiries to the relevant authorities as to the availability of services.

Local Authority

North Norfolk District Council

Solicitors

Hansells (North Walsham), Ref: Sue Lloyd, Tel: 01603 753439

Important Notice to Prospective Buyers:

We draw your attention to the Special Conditions of Sale within the Legal Pack, referring to other charges in addition to the purchase price which may become payable. Such costs may include Search Fees, reimbursement of Sellers costs and Legal Fees, and Transfer Fees amongst others.

Additional Fees

Buyer's Premium - £900 inc VAT payable on exchange of contracts.

Administration Charge - 0.3% inc VAT of the purchase price, subject to a minimum of £1200 inc VAT, payable on exchange of contracts.

Disbursements - Please see the legal pack for any disbursements listed that may become payable by the purchaser on completion.

View Larger Map

Disclaimer: The map preview provided above is for general guidance only and may not accurately reflect the exact location or surrounding buildings. Prospective buyers and interested parties are strongly advised to independently verify the precise location and surroundings before bidding.