For Sale By Auction | 11:00, 11 December 2024 | Lot 64

11 Recreation Road, Norwich, Norfolk NR2 3PA

Sold £385,000

  • Detached House
  • 4 Bedrooms
  • Tenure: Freehold

Call the team on 01603 505 100 for more information

Auction Date

Wed 11/12/2024

Auction Time

11:00

Auction Venue

Livestream Auction

4 Bedroom detached house in a highly sought after residential location 

Vacant detached house previously used as a 5 bedroom student let but now ideal for family use or retention as a highly productive investment property. The property has the benefit of off road parking, an integral garage and secluded private gardens. Being in the Golden Triangle area of Norwich the property lays convenient for access to The University of East Anglia, The Norfolk and Norwich Hospital and a few steps from the Earlham Shopping Centre. Internal inspection is highly recommended.

Tenure

Freehold

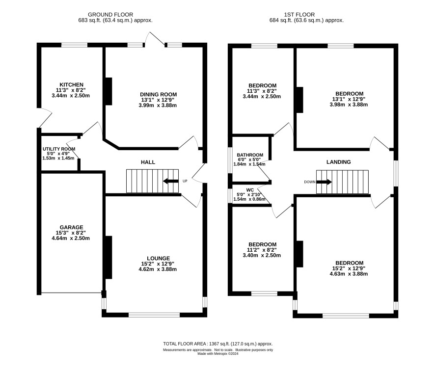
Ground Floor

Hall, lounge, dining room, kitchen, cloakroom

First Floor

Landing, four bedrooms, bathroom, separate wc

Outside

Small front garden with off road parking and access to integral garage. Private and secluded rear garden.

Council Tax Band

D

Viewings

Viewings are being held by appointment only. The next available appointment is Tuesday 10 December Please contact the Norwich office to book your appointment..

Energy Efficiency Rating (EPC)

Current Rating D

Services

Interested parties are requested to make their own enquiries to the relevant authorities as to the availability of services.

Local Authority

Norwich City Council

Solicitors

Leathes Prior (The Close), Ref: Joanna Allen, Tel: 01603 281009

Important Notice to Prospective Buyers:

We draw your attention to the Special Conditions of Sale within the Legal Pack, referring to other charges in addition to the purchase price which may become payable. Such costs may include Search Fees, reimbursement of Sellers costs and Legal Fees, and Transfer Fees amongst others.

Additional Fees

Buyer's Premium - £720 inc VAT payable on exchange of contracts.

Administration Charge - 0.3% inc VAT of the purchase price, subject to a minimum of £1200 inc VAT, payable on exchange of contracts.

Disbursements - Please see the legal pack for any disbursements listed that may become payable by the purchaser on completion.

View Larger Map

Disclaimer: The map preview provided above is for general guidance only and may not accurately reflect the exact location or surrounding buildings. Prospective buyers and interested parties are strongly advised to independently verify the precise location and surroundings before bidding.