For Sale By Auction | 11:00, 11 December 2024 | Lot AVAILABLE

Garsett House, 1 Princes Street, Norwich, Norfolk NR3 1AU

*Guide | £375,000 (plus fees)

  • House (unspecified)
  • Tenure: Freehold

Call the team on 01603 505 100 for more information

Auction Date

Wed 11/12/2024

Auction Time

11:00

Auction Venue

Livestream Auction

This prominent historic Grade II listed building in the very heart of the city has recently been completely renovated

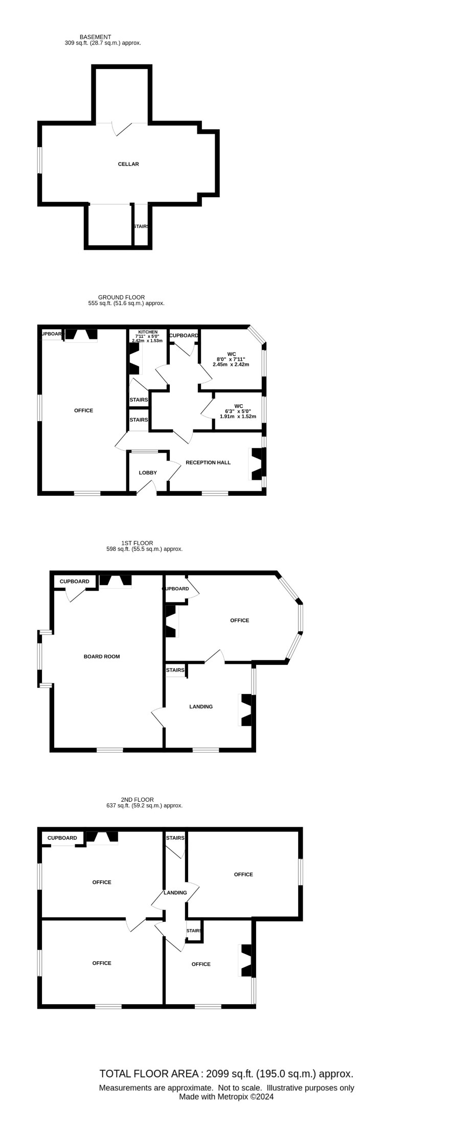
This unique historic Grade II listed building occupies a prime position opposite St Andrew's Hall and has wonderful triple aspect views of the area. This property has recently been refurbished to make a splendid family home, however the planning has been delayed within the Nutrient Neutrality ban and is awaiting a decision to be transferred from commercial use to residential use. The versatile property was formerly used by a local company as its main office and housed over 20 employees with six separate offices. Previous uses include a school, doctor's and dentist's surgeries and serviced office space. It extends to around 156 sq/m and offers many opportunities. This is a particularly important building of exceptional special interest with outstanding interiors and we strongly recommend an internal viewing.

Tenure

Freehold

History

The property is also known as Armada House as it was believed to be partly built from timbers of the sunken Spanish Armada. The story is emphasised by the date 1589 carved on the exterior, and a plaster relief carving of a 16th century ship under sail on the Princes Street side of the building. Although there has been a property on the site since the 14th century the name Garsett House presumably comes from a previous owner Robert Garsett in 1570. It has had numerous uses over the years and was used as a school in 1864 and owned by Ernest Kent a solicitor who on his death bequeathed the property to the Norfolk and Norwich Archaeological Society.

Viewings

Viewings are being held by arrangement. Please contact the Norwich office to book your appointment.

Energy Efficiency Rating (EPC)

Current Rating F

Services

Interested parties are requested to make their own enquiries to the relevant authorities as to the availability of services.

Local Authority

Norwich City Council

Solicitors

Isadore Goldman, Ref: Robert Pyke, Tel: 01603 611370

Important Notice to Prospective Buyers:

We draw your attention to the Special Conditions of Sale within the Legal Pack, referring to other charges in addition to the purchase price which may become payable. Such costs may include Search Fees, reimbursement of Sellers costs and Legal Fees, and Transfer Fees amongst others.

Additional Fees

Buyer's Premium - £960 inc VAT payable on exchange of contracts.

Administration Charge - £1200 inc VAT payable on exchange of contracts.

Disbursements - Please see the legal pack for any disbursements listed that may become payable by the purchaser on completion.

View Larger Map

Disclaimer: The map preview provided above is for general guidance only and may not accurately reflect the exact location or surrounding buildings. Prospective buyers and interested parties are strongly advised to independently verify the precise location and surroundings before bidding.