For Sale By Auction | 11:00, 11 December 2024 | Lot 57

Flat 12, Warners Mill, Silks Way, Braintree, Essex CM7 3GB

Sold £80,000

  • Flat
  • 1 Bedroom
  • Tenure: Leasehold.

Call the team on 01702 939933 for more information

Auction Date

Wed 11/12/2024

Auction Time

11:00

Auction Venue

Livestream Auction

Viewing Times:

Thu 5 Dec

13:00-13:30

First floor vacant flat in attractive former Mill Building

A Leasehold one bedroom flat on the first floor of this historic building. Warners Mill is conveniently situated close to the town centre and less than 400 yards to Braintree Railway Station. There is an allocated car parking space.

Tenure

Leasehold.

Communal entrance hallway and stairs leading to

First Floor

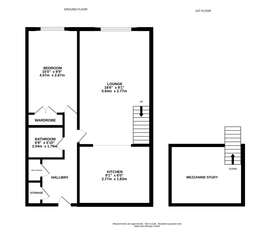
Personal Entrance door Entrance Hall 15'2" x 5'6" max Lounge 19' x 9'2" Kitchen 9'1" x 7' Bedroom 15'4" x 8'9" Bathroom/WC 2'8 x 6'6"

Mezzanine Floor (stairs from Lounge)

Over Kitchen 9'1" x 7'

Externally

Communal grounds and car parking ALLOCATED car parking space.

Council Tax Band

A

Lease details

Term: 99 years from 10 August 1990 (65 years unexpired) Annual Ground Rent: Please refer to legal pack Annual Service Charge: Please refer to legal pack

Energy Efficiency Rating (EPC)

Current Rating E

Services

Interested parties are requested to make their own enquiries to the relevant authorities as to the availability of services.

Local Authority

Braintree District Council

Solicitors

Ascent Legal, Bauhaus Rossetti Place, Ref: Ascent Legal, Tel: 0161 838 3105

Important Notice to Prospective Buyers:

We draw your attention to the Special Conditions of Sale within the Legal Pack, referring to other charges in addition to the purchase price which may become payable. Such costs may include Search Fees, reimbursement of Sellers costs and Legal Fees, and Transfer Fees amongst others.

Additional Fees

Buyer's Premium - £1200 inc VAT payable on exchange of contracts.

Administration Charge - 0.3% inc VAT of the purchase price, subject to a minimum of £1200 inc VAT, payable on exchange of contracts.

Disbursements - Please see the legal pack for any disbursements listed that may become payable by the purchaser on completion.

View Larger Map

Disclaimer: The map preview provided above is for general guidance only and may not accurately reflect the exact location or surrounding buildings. Prospective buyers and interested parties are strongly advised to independently verify the precise location and surroundings before bidding.