For Sale By Auction | 11:00, 12 February 2025 | Lot 50 - AVAILABLE POST AUCTION

6 Albert Road, Framlingham, Woodbridge, Suffolk IP13 9EQ

*Guide | £200,000 - £250,000 (plus fees)

  • Detached House
  • Tenure: Freehold

Call the team on 01473 558 888 for more information

Auction Date

Wed 12/02/2025

Auction Time

11:00

Auction Venue

Livestream Auction

A former community hall in the heart of Framlingham currently used as residential and with off road parking

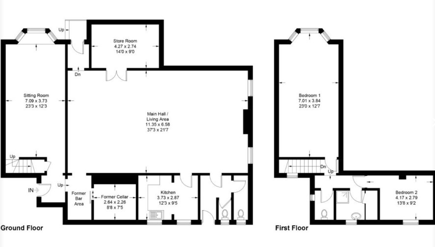
Offering a great redevelopment opportunity for the next owner, this property benefits from a large open space on the ground floor, kitchen, sitting room/potential third bedroom, W/C, two bedrooms on the first floor as well as a bathroom and another W/C. Outside there is a small rear courtyard with a pathway to the rear of the building and also a single off-road parking space. The property is currently classified as commercial but offers potential for formal residential use subject to Planning Permission. Framlingham offers a variety of independent shops and businesses as well as the Crown Hotel and a Co-Operative supermarket, both within easy walking distance of the property. A vibrant market takes place twice weekly on the hill, with a selection of stalls that include fishmongers, cheese vendors, and fresh produce. Framlingham is best known for its castle and set within the Suffolk countryside.

Tenure

Freehold

Council Tax Band

D

Energy Efficiency Rating (EPC)

Current Rating E

Services

Interested parties are requested to make their own enquiries to the relevant authorities as to the availability of services.

Local Authority

East Suffolk Council

Solicitors

Kerseys Solicitors, Ref: Jane Riley, Tel: 01473 407122

Important Notice to Prospective Buyers:

We draw your attention to the Special Conditions of Sale within the Legal Pack, referring to other charges in addition to the purchase price which may become payable. Such costs may include Search Fees, reimbursement of Sellers costs and Legal Fees, and Transfer Fees amongst others.

Additional Fees

Buyer's Premium - £1140 inc VAT payable on exchange of contracts.

Administration Charge - £1200 inc VAT payable on exchange of contracts.

Disbursements - Please see the legal pack for any disbursements listed that may become payable by the purchaser on completion.

View Larger Map

Disclaimer: The map preview provided above is for general guidance only and may not accurately reflect the exact location or surrounding buildings. Prospective buyers and interested parties are strongly advised to independently verify the precise location and surroundings before bidding.