Sold Prior | Lot 105

128 Wolseley Road, Great Yarmouth, Norfolk NR31 0EJ

Sold Prior

  • Terraced House
  • Tenure: Freehold

Call the team on 01603 505 100 for more information

Auction Date

Wed 12/02/2025

Auction Time

11:00

Auction Venue

Livestream Auction

Three bedroom terrace house in need of modernisation and redecoration situated in the seaside resort of Great Yarmouth

This terrace house is situated in the seaside resort of Great Yarmouth and is in need of complete modernisation to realise its full potential. It has partial gas central heating (ground floor), is double glazed, and has a good size garden to the rear. The house is ideal for owner occupation, investment or builder and will be sold with vacant possession. Wolseley Road is close to Southtown Road which is convenient to the town centre, various retail parks and other community facilities.

Tenure

Freehold

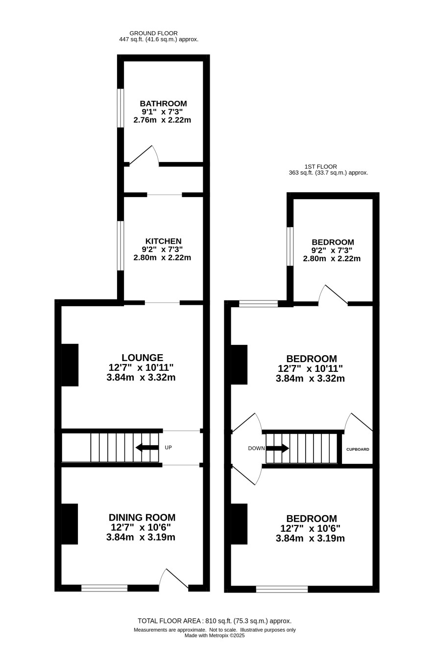
Ground Floor

Dining room, lounge, kitchen, bathroom

First Floor

Three bedrooms

Outside

Small garden at the front, good size rear garden

Council Tax Band

A

Energy Efficiency Rating (EPC)

Current Rating D

Services

Interested parties are requested to make their own enquiries to the relevant authorities as to the availability of services.

Local Authority

Great Yarmouth Borough Council

Solicitors

Lucas and Wyllys (Great Yarmouth), Ref: Julie Garrod, Tel: 01493 855555

Important Notice to Prospective Buyers:

We draw your attention to the Special Conditions of Sale within the Legal Pack, referring to other charges in addition to the purchase price which may become payable. Such costs may include Search Fees, reimbursement of Sellers costs and Legal Fees, and Transfer Fees amongst others.

Additional Fees

Buyer's Premium - £600 inc VAT payable on exchange of contracts.

Administration Charge - 0.3% inc VAT of the purchase price, subject to a minimum of £1200 inc VAT, payable on exchange of contracts.

Disbursements - Please see the legal pack for any disbursements listed that may become payable by the purchaser on completion.

View Larger Map

Disclaimer: The map preview provided above is for general guidance only and may not accurately reflect the exact location or surrounding buildings. Prospective buyers and interested parties are strongly advised to independently verify the precise location and surroundings before bidding.